- 您的位置:
- 标准下载网 >>
- 标准分类 >>
- 电子行业标准(SJ) >>
- SJ/T 211.3-1996 电子工业专用设备设计文件 第3部分:设计文件的格式
标准号:
SJ/T 211.3-1996
标准名称:
电子工业专用设备设计文件 第3部分:设计文件的格式
标准类别:
电子行业标准(SJ)
标准状态:
现行-
发布日期:
1996-07-22 -
实施日期:
1996-11-01 出版语种:
简体中文下载格式:
.rar.pdf下载大小:
205.57 KB
中标分类号:
医药、卫生、劳动保护>>医药、卫生、劳动保护综合>>C01技术管理
替代情况:
替代SJ 211-66;

部分标准内容:
路案号:71~74—1997
中华人民共和国电子行业标准
SJ/T 211.1-~211.4-1996
电子工业专用设备设计文件
Dcsign dlncurents for specialequipmenl for elertrunit:indusiry1996-07.22发布
1996-11-01 实施下载标准就来标准下载网
中华人民共和国电子工业部,发布,前
-iYKAoNTKAca-
适应电【业专用设备设计工作的需要,概据电子工业学用设备各研制单位的意见,参考有关国外光进际随、国家标准和其他行业标准.对5S211-6G<万缴电工业专用言产投备设计文件的缔制裁则>试行)进行广修订。后的标准以(电一工业专用设备议计文件)为总名称,分成以下6个部分:饰1部分即S[211.),没汗文件的完整性第2部分(即S/下211.2):图控的标助栏附加栏和明细拦:第3分(即SJ/T211.3):没计文补的格式:第4部分(即S/T211.4):设计文析的编制;第5两分(即S/T211.5):这汁文件的编与;第6部分《F1SI/T211.6):设计让文性的改。本次发布标准ST/T211.E--ST/T211.4。了一业专用设备各讲制单位的设义件,不论其技术内容如何,都应尽可能按本标准以相同的形式券达。
本标准出电子工业的标准化研究所尚口。牛坛年起草位:巨西非圳器!
本标准主要起卓人第继样、葬安定、郝恭1范围
中华人民共和国电子行业标准
电子工业专用设备设计文件
第3部分,设计文件的格
Design lueuments fur apecil
oquipmenl for aleclrenic induslryPart 3:Format of design documents本标准定了电子工业专用设备设计文件的格式,木标准适用十电业专用设备各种设计文件的编划:2引用标准
SJ/T211.3—1996
代势211-66
下列标准所包合的条文,通过在木标确中叫制而格成为末标消的多文。车标滞出版时,所示版木均为有效。所右标准部会被修订,使用本标准的各方应坏讨使用下列标准最新版本的可能性。
GB1.2—5
CB148—89
标准化..作导则标准出版印划的规定印制、写及图抵幅尺寸
GB/T14689—93技术制图至幅面和格式3设计文件的幅面
3.1修群的幅面接(B/1469的规定,3.2文件的而一般买用A4幅面,对了学格,打印件,印件等形式范文件,可以果用GH148 规定的 B4 幅面。
当交牛中图拦或表格排列有围难时,其响面允许向翻开方司适当加关,4设计文件的格式
4.1图样豹种类和格式出表1:
中华人民和国电于工业部1996-07-22批准-
1996-11-01实施
SJ/T211.31996
函拌抑炎
零件因
亚图(或系榜图)
功能来图
流释用
情路象统匡
波,天系统修
上改东统区
液统区
高学系统k
光学示:统作
滋粒汀意区
总(发配图
电菇围
报我图
文件的邦相格我也表2
核张态
步件:长
借用伴“总表
标作件二>本
外件总表
材汇总表
股计文件法单
以院明15
生尺说明书
诉变动总大网
证报告
可行禁告
方案心就
可京安总计排:
算·5
小准雪试联办案
试制总组或新制:
产品装
设或课下年!
iiKAoNiKAca
2或1和3
4或1和5
培实卧情记定
按机记
自行现定
安实险博5定
—12—
$J/T211.3-1996
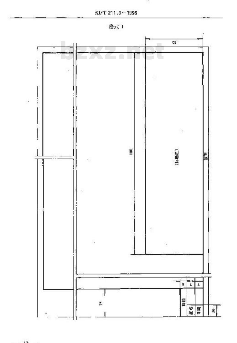
格式1
SJ/T211.3-1996
-KNKCa
$J/T 211.3—1996
各改度路
sI/T 211.3 -- 1996
格式4
iKNiKca-
15 —
SJ/T 211,3-1996
格式5
称及益号
丝纯号线
碳略型
SJ/T211.3-1996
格武6
家收说可名门所
成年.化.名格:
-KoNiKca
(产只)
(文门代)
学专及地路
SI/1211.3-1996
格或7
实谢信
商单信务
(品单.名
(&件名
名附及战亭
SI/T211.3—1996
iKNMKAca
共张的水
(文计代)
小提示:此标准内容仅展示完整标准里的部分截取内容,若需要完整标准请到上方自行免费下载完整标准文档。
中华人民共和国电子行业标准
SJ/T 211.1-~211.4-1996
电子工业专用设备设计文件
Dcsign dlncurents for specialequipmenl for elertrunit:indusiry1996-07.22发布
1996-11-01 实施下载标准就来标准下载网
中华人民共和国电子工业部,发布,前
-iYKAoNTKAca-
适应电【业专用设备设计工作的需要,概据电子工业学用设备各研制单位的意见,参考有关国外光进际随、国家标准和其他行业标准.对5S211-6G<万缴电工业专用言产投备设计文件的缔制裁则>试行)进行广修订。后的标准以(电一工业专用设备议计文件)为总名称,分成以下6个部分:饰1部分即S[211.),没汗文件的完整性第2部分(即S/下211.2):图控的标助栏附加栏和明细拦:第3分(即SJ/T211.3):没计文补的格式:第4部分(即S/T211.4):设计文析的编制;第5两分(即S/T211.5):这汁文件的编与;第6部分《F1SI/T211.6):设计让文性的改。本次发布标准ST/T211.E--ST/T211.4。了一业专用设备各讲制单位的设义件,不论其技术内容如何,都应尽可能按本标准以相同的形式券达。
本标准出电子工业的标准化研究所尚口。牛坛年起草位:巨西非圳器!
本标准主要起卓人第继样、葬安定、郝恭1范围
中华人民共和国电子行业标准
电子工业专用设备设计文件
第3部分,设计文件的格
Design lueuments fur apecil
oquipmenl for aleclrenic induslryPart 3:Format of design documents本标准定了电子工业专用设备设计文件的格式,木标准适用十电业专用设备各种设计文件的编划:2引用标准
SJ/T211.3—1996
代势211-66
下列标准所包合的条文,通过在木标确中叫制而格成为末标消的多文。车标滞出版时,所示版木均为有效。所右标准部会被修订,使用本标准的各方应坏讨使用下列标准最新版本的可能性。
GB1.2—5
CB148—89
标准化..作导则标准出版印划的规定印制、写及图抵幅尺寸
GB/T14689—93技术制图至幅面和格式3设计文件的幅面
3.1修群的幅面接(B/1469的规定,3.2文件的而一般买用A4幅面,对了学格,打印件,印件等形式范文件,可以果用GH148 规定的 B4 幅面。
当交牛中图拦或表格排列有围难时,其响面允许向翻开方司适当加关,4设计文件的格式
4.1图样豹种类和格式出表1:
中华人民和国电于工业部1996-07-22批准-
1996-11-01实施
SJ/T211.31996
函拌抑炎
零件因
亚图(或系榜图)
功能来图
流释用
情路象统匡
波,天系统修
上改东统区
液统区
高学系统k
光学示:统作
滋粒汀意区
总(发配图
电菇围
报我图
文件的邦相格我也表2
核张态
步件:长
借用伴“总表
标作件二>本
外件总表
材汇总表
股计文件法单
以院明15
生尺说明书
诉变动总大网
证报告
可行禁告
方案心就
可京安总计排:
算·5
小准雪试联办案
试制总组或新制:
产品装
设或课下年!
iiKAoNiKAca
2或1和3
4或1和5
培实卧情记定
按机记
自行现定
安实险博5定
—12—
$J/T211.3-1996
格式1
SJ/T211.3-1996
-KNKCa
$J/T 211.3—1996
各改度路
sI/T 211.3 -- 1996
格式4
iKNiKca-
15 —
SJ/T 211,3-1996
格式5
称及益号
丝纯号线
碳略型
SJ/T211.3-1996
格武6
家收说可名门所
成年.化.名格:
-KoNiKca
(产只)
(文门代)
学专及地路
SI/1211.3-1996
格或7
实谢信
商单信务
(品单.名
(&件名
名附及战亭
SI/T211.3—1996
iKNMKAca
共张的水
(文计代)
小提示:此标准内容仅展示完整标准里的部分截取内容,若需要完整标准请到上方自行免费下载完整标准文档。

标准图片预览:





- 热门标准
- 电子行业标准(SJ)
- SJ/T10978-1996 电子器件详细规范 2CC21、2CC26型硅调谐变容二极管(可供认证用)
- SJ50065.6-1998 JMW-270M型有可靠性指标的微型密封磁保持继电器详细规范
- SJ993-75 双动冲床引伸模 固定板定位板
- SJ1011-1975 手柄翻开式钻模 压板
- SJ796-74 3DG160型NPN硅平面高频小功率高反压三极管
- SJ3039.1-1988 组合冲模 90°特形弯曲刃口合件
- SJ20740-1999 战场侦察雷达性能试验方法
- SJ/T31226-1994 液压剪刀机完好要求和检查评定方法
- SJ/T10519.13-1994 塑料注射模零件 矩形顶杆
- SJ797-74 3DG161型NPN硅平面高频小功率高反压三极管
- SJ991-75 双动冲床引伸模 底座
- SJ1486-79 3CG180型PNP硅外延平面高频小功率高反压三极管
- SJ3024.3-1988 组合冲模 顶杆
- SJ20527/3-2001 微波组件WFZ816A型压控振荡器详细规范
- SJ1187-1977 6N1(J)双三极管
- 行业新闻
请牢记:“bzxz.net”即是“标准下载”四个汉字汉语拼音首字母与国际顶级域名“.net”的组合。 ©2009 标准下载网 www.bzxz.net 本站邮件:bzxznet@163.com
网站备案号:湘ICP备2023016450号-1
网站备案号:湘ICP备2023016450号-1