- 您的位置:
- 标准下载网 >>
- 标准分类 >>
- 船舶行业标准(CB) >>
- CB/T 3435-92 船用继电器修理要求
标准号:
CB/T 3435-92
标准名称:
船用继电器修理要求
标准类别:
船舶行业标准(CB)
标准状态:
现行出版语种:
简体中文下载格式:
.zip .pdf下载大小:
424.95 KB

点击下载
标准简介:
CB/T 3435-92.
1主题内容与适用范围
CB/T 3435规定了船舶控制继电器及保护继电器的修理工艺。
CB/T 3435适用于各种船用有触点继电器及晶体管继电器的修理.调整及验收。
CB/T 3435不适用于靠机械参量直接动作的继电器。
2.引用标准
JB 3702时间继电 器技术条件
JB3703小型通用电磁继电器技术条件
3总则
3.1修理继电器前,应充分了解继电器的工作原理、故障现象及电源情况。
3.2继电器整体拆卸时,应将外接线作好标记。
3.3解体继电器,应将元器件及小零部件存妥,元器件接线应做好标记,机械继电器解体应注意解体顺序。
3.4修理好的继电器,安装前应全面清洁,机械继电器使用清洗剂清洗整沽,晶体管继电器使用无水酒精将线路板、接插件擦洗千净。.
4有触点继电器的修理
4.1有触点继电器常见故障
有触点继电器常见故障见表1。
4.2有触点继电器的一般检修方法
4.2.1检查继电器各螺钉是否处于拧紧状态。
4.2.2采用印迹法检查动、静触点接触情况,即在静触点上涂以印迹,观察动触点的接触面。
4.2.3检查衔铁及铁芯的接触情况,清除接触面的污垢。
4.2.4检查时间继电器的非磁性垫片,如有磨损应换新,并应符合JB3702有关规定。
4.2.5检查电磁线圈,若断路或短路,应修理或换新,重绕过的线圈应明确标记有关线圈参数。
4.2.6调整继电器弹簧,使触点参数、超额行程符合说明书要求。

部分标准内容:
CB/T 3435—92
船用继电器修理要求
1992-17-03发布
中国船舶工业总公司
1993-05-01实施
中华人民共和国船舶行业标准
船用继电器修理要求
主题内容与适用范围
CR/T 3435—92
分类号:R34
本标准规定了船控制继电器及保护继电器的峰理上艺。本标准适用下各种船用有触点继电器及品体管继而器的修理、调整及验收。小标雅不适用于靠机械参量直接动作的继电器。
.引用标准
JB3702时间继电器技术条件
JB3703小型通用电磁继电器技术条件3总则
3.1修理继凸器前,应充分了解继电器的工作原理、故障现象及电源情况。3.2继电器整体拆卸时.应将外接线作好标记。3.3解体继电器,应将元器件及小零部件存妥,儿器件接线应做好标记,机械继电器解体应注意解体顺序。
3.4修理好的继电器,安装前应全而清洁,机械继电器使用清洗剂清洗整滑,晶体管继电器使用无水酒将线踏板、接插件擦洗干净。wwW.bzxz.Net
有触点继电器的修理
4.1存触点继电器常见故降
有触点继电器常见放障见表1。
中国船舶工业总公司 1992 11-03 批准FTYKAONIKAca-
1993-05-01实施
故障类别
反力部分
故蟑现象
触点表面坑四不平或触点分不开融点闭合不紧或触点跳动,停带融点断开时电孤较大
衔吸不上或通电后线圈过热
衔钦吸合后释前围难
衡钱吸合后响声异常
动融点动作不灵
反力弹赞变形
4.2有触点继电器的一般检修方法CB/T 3435—92
3.电谈过大;
政障原区
b.并断次效过于频,
a.线圈屯压不足:
h.触点购恢严量,
机标原因
.动,静融点距离偏差:
h.动触点动作不灵活.
2.线图电压不定:
h.线圈损坏
[e.衔铁气隙过大.
1.压力变形1
:b.剩磁过大:
c.快心接触面锈蚀。
让,线圈端追压不足:
b.良力弹黄太强;
e.交流继电器的短踏环摄坏:
d浅圈斑坏。
弹簧压力调整不台适
1. 弹策压力调整不对;
[.动作达数过频。
检查继电器各螺钉是否处于挤紧状态。采用印迹法检查动、静融点接触情况,即在静触点上涂以印迹,观案动融点的接触面,4.2.2
检街铁及铁芯的接触情况,清除接触面的污垢。4.2.3
检在时间继电器的非磁性垫片,如有磨损应换新,并应符合JB3702有关规定。4.2.4
4.2.5检查电避线圈,若断路或短路,成修理或换新,单绕过的线圈应咽确标记有关线圈参数,4.2.6调罄继电器弹贫,使触点参数,超赖行程符合说明书要求。4.3触点故障的检修
继电器触点的接触面不平,采用细砂布研磨,直到接触良好。4. 3. 1
4.3.2触点发热的检修方法如下;a.
除掉触点表面的紅化层;
调整弹赞压力使触点超额行程符合说明书要求。4.3.3触点跳动或停滞的检修方法如下:a,
检查线册端电压,其值不得低于额定值的 85%:b、检查动触点的动作是否灵数
灼伤严重的触点要换新。
4.4电磁部分的检修
4.4.1检直线圖端电正。
4.4.2检查动、静铁芯的接触面是否良好,若不平,应够整。2
CB/T 343592
4.4.3检查交流继电器短路坏,若损坏,应修理或换新。4.5压力弹黄的调整
继电器触点终压力整延在\.005~0,01MPa,超额行程整定在1~4mm。4.6修理后验收
4.6.1像理后的继电器触点应接触良好,动触点动作门如,所有螺钉处于拧紧状态.4.6-2继电器触点参数应符合说明-$要求。4.6.3继电器线阅施以额定电压,空载时,数次通断,继电器应能正常工作,4. 6.4装船后,进行效能试验,继电器应工作正带,晶体管继电器的修理
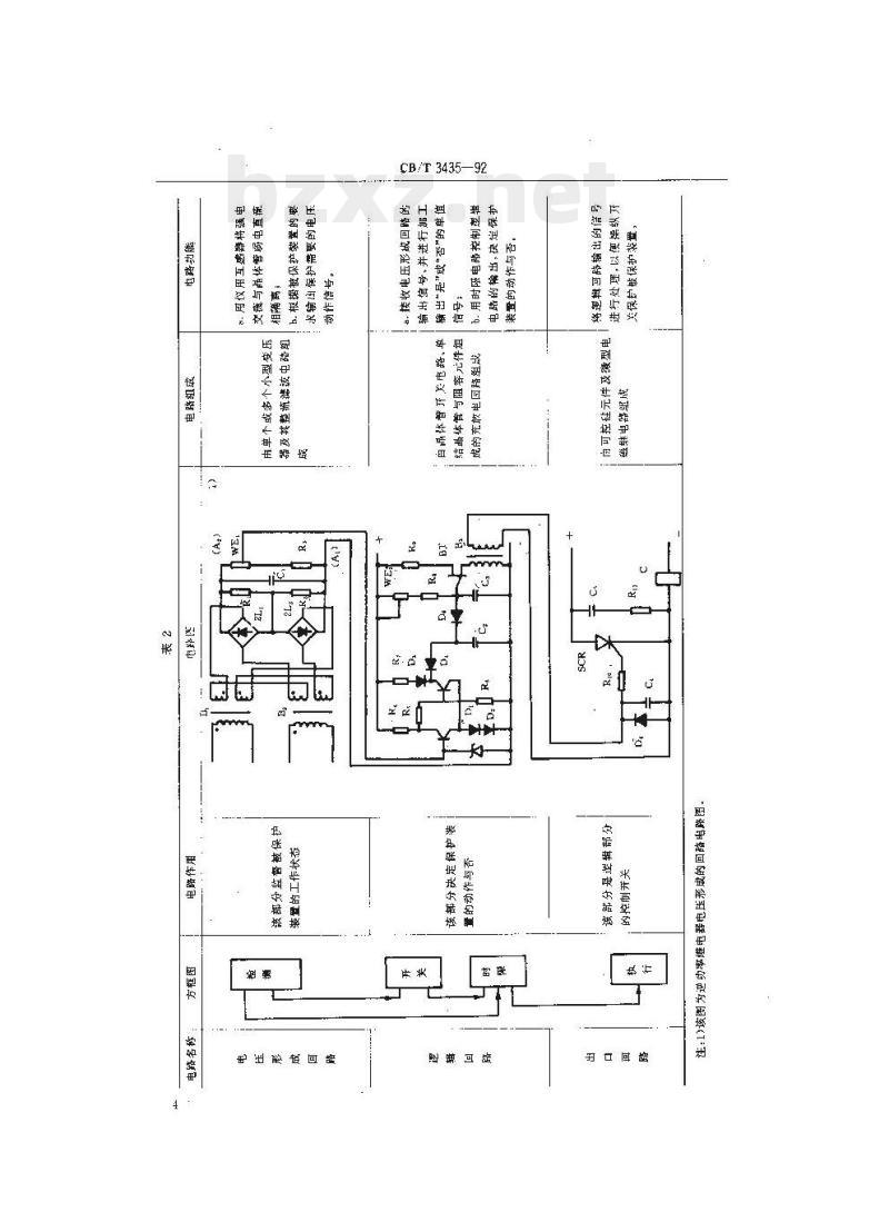
晶体管继电器电路分析
晶体管继电器电路分析见表2
KAONIKAca-
电压形成回路
CB/T 3435—92
逻拇回路
出口回路
5.2晶体管继电器电路故障现象
晶体管继电器电路故障现象见表3.故障类
路故璋
故障现象
CB/T 3435—92
施以信号电压,变压器次极精出不正常变压器输出正常,整滇后输出偏差较大用示波器检查,泄波后的波形失真严重信号电压止常,输入时有时尤!元器件烧焦等
开关电路无输出
时限电路无输出电压,或延时不正常,可控硅无触发电压
逻辑电路输出正常,可控硅不工作可控硅有输出,继电器不动作
5.3电压形成回路工作原理及故障检修5.3.1工作原理
变压器故障
:极管失效或击穿
滤波电容漏电、摄坏
敌障源困
接插件接触不良+线路板有查焊、脱焊点或有短路点
.二极管或晶体管损坏
b.品体管工作电压不正常,电阻断路,电容据电或报坏
b.单结晶体首损坏
c-脉冲变压器捌坏
可控硅元件损坏
微型电磁继电器拟坏
变压器输出的信号,经整流滤波,送到逻辑回路。表2吓逆功率继电器输入采用和,差接线获得两个电气量,即矢量电压和失呈差电压。当发电机正常运转时.1A;1≥IA,继电器不动作。出现逆功率吋,IA,I≤!A继电器动作。
5.3.2故障检修
5.3.2.1检否变压器绕组有无断路现象,如有断路现象应按下列要求进行检修:a.
外引线断线,焊好后应重新处理绝缘;绕组断路,短路,应重绕线围,新绕组的线径、匝数与原绕组相同,并标记线圈数据。5.3.2.2检直整流二极管量,如损坏应按下列要求换:a.
对三相桥式整流-其反相电压人于2.45倍额定电压,平均电流人于1/3倍额定电流;对单相桥式整流其反相电压大于1.41倍额定电压,平均电流人于1/2倍额定电流。5.3-2.3检查电组,电容,如损坏,按原值换新。5.3.2.4检查电位器质录,若损坏,应修理戴换新。5.4逻辑回路下作原理及故障检修5.4.11作原理
逻辑回路出开关电踏及时限电路组成,开关电路接收电乐形成回路信号,其输出使时限电路电奔充电,达一定值时,单结晶体管导通,脉冲变压器有输出。5.4.2故降静态检修
5.4.2.1观察元器件有尤烧坏爆裂、变色等异常现象。5.4.2.2检查元器件有无虑焊、脱焊现象。5.4.2.3检查接插件的质量、如黄片弹力变小、变形、断升等,接插件应换新,5.4.2.4检查元器件质量,如有损坏,应修理或换新单结晶体管的检古方法如下
5. 4. 2. 5
a.:按下图连线:
HTYKADNIKAca
CB/T3435-92
围中,Vi一试验电压:I射极电流mA旁安表V-电压表,BT—单结晶体管:Vm一基极向电压:·分压比R—电阻,W—电位器
调节改变W,I垦著增加,nVm下降,出现负阻特性,此时的电压称峰点电正。单结晶体管正c.若改变Ve+Is变化很小,则可判断单结晶体管摄坏。5.5出口回路工作原理及故障检修5.5.1工作原理
脉冲变正器的输出,触发可控链,可控硅导通.输出执行信号,微型电磁继电器动作。5.5.2故障检修
检查可控硅等元器件,者损坏,应按原型号换新或根据参数值查出替代型号。5.5.2.2检查微型电磁继电器,换新时,应符合JB3703有关规定。5.6晶体管继电器动态检在
5.6.1动态检查应在静态检查完成店进行。5.6.2施以正常电K,观赛电路工作情况,同时测量晶体管工作情况,若损坏,应换新,5.6.3用示波器观察电路有关各点波形,参见表2电路图,波形见表4.者波形有误,应检查有关电路。表4
避试点
T,C极
跆医极
波形图
电压幅值
有赔号
近拟0
接近电
源电压
电压逐
渐升高
无信号
接近电
源电压
无脉神
5.6.4在有培号时,观察继电器动作情说CH/T3435—92
5.6.5上述检查修理后·进行清理装配完整,5.7修理后的验收
5.7.1修理后的继电器应安装完整、清沾各部件中围、可靠。5.7.2继电器外引线接线板应标记正确、清楚。5.7.3所有外接线全部正确接安,施以正常电压,并加模拟信号,继电器应能正带工作。5.7.4装船后,进行实效试验,继电器工作正常。附加说明:
本标唯由全国海洋船标准化技术委员会修船分技术委员会提出,本标准由天津修船技术研究所归口本标唯天津够船技术研究断负丧起草。本标准起草人橘友祥。
YKAONiKAca-
小提示:此标准内容仅展示完整标准里的部分截取内容,若需要完整标准请到上方自行免费下载完整标准文档。

标准图片预览:





- 其它标准
- 上一篇: QB/T 1678—1993 漂白硫酸盐木浆
- 下一篇: QB/T 1677-1992 真空吸奶罐
- 热门标准
- CB船舶标准
- CB/T3790-1997 船舶管子加工技术条件
- CB/T3559-94 船舶钢焊缝手工超声波探伤工艺和质量分级
- CB/T3365-91 管子无余量下料工艺
- CB/T3591-94 法兰球铁油轮闸阀
- CB/Z343-2005 船用配件热浸镀锌
- CB/T3835-1999 船用高压横梁顶杆式叶片马达
- CB/Z303-78 长江客货船船模系列试验图谱
- CB/T4153-2011 船舶无甲板纵向下水强度计算
- CB/T3905.7-2005 锡基轴承合金化学分析方法第7部分:丁二酮肟光度法测定镍量
- CB/Z214-85 舰艇柴油机轴系扭转振动计算
- CB1387-2007 舰船建造关键工序质量控制要求
- CB/T3958-2004 船舶钢焊缝磁粉检测、渗透检测工艺和质量分级
- CB/Z258-89 铝合金船体氩弧焊接工艺规程
- CB/Z319-82 运输船重量分类及重心计算
- CB1125-1998 水声用压电陶瓷材料规范
- 行业新闻
网站备案号:湘ICP备2023016450号-1