- 您的位置:
- 标准下载网 >>
- 标准分类 >>
- 机械行业标准(JB) >>
- JB/T 2663-1999 ADP 系列交流伺服电动机技术条件
标准号:
JB/T 2663-1999
标准名称:
ADP 系列交流伺服电动机技术条件
标准类别:
机械行业标准(JB)
英文名称:
Technical requirements for ADP series AC servo motors标准状态:
现行-
发布日期:
1999-08-06 -
实施日期:
2000-01-01 出版语种:
简体中文下载格式:
.rar.pdf下载大小:
557.98 KB
替代情况:
JB 2663-1980
点击下载
标准简介:
标准下载解压密码:www.bzxz.net
本标准规定了ADP系列交流伺服电动机的技术要求、试验方法、检验规则及质量保证期和标志、包装、运输、贮存。本标准适用于ADP系列交流伺服电动机,该系列电动机是防护式两相电容杯形转子异步电动机。 JB/T 2663-1999 ADP 系列交流伺服电动机技术条件 JB/T2663-1999
部分标准内容:
中华人民共和国机械行业标准
JB/T2663
1999-08-06
颧赣養船
2001-01-01小缆
佤鱻懂
JB/T26631999
本标准是对JB2663—80《ADP系列交流伺服电动机》进行的修订。按照GB/T1.1、GB/T1.22、和GB/T1.3的要求对本标准进行了重新组合与编排、在丰要技术内容不变的情说下对文字进行了一些删改,本标准与标准B2663—80的不尚之处主要是:1本标准势彻基础标准的法定计量单位。2本标准增加了“1范围\。
3本标准增加了“2小用标准”。4本标准增了“3产品分类”。
5本标准将原标准“三验收规则”修改为“6检验规则”和“7质量保证期”。6本标准将原标准“四标志、包装、运输和保管”修改为“8标志、包装、运输利贮存”。说明:对于AⅡⅡI一1型电机,与ADP—1电机相比只是结构不向,在主要外形尺寸、电气原额定数据、技术数据、检测方法...等均同,为此本标准中术列人,对AⅡIⅡI一1型电机的检测均按ADP—1型电机技术要求。
本标准自实施之日起代替JB2663—80。本标准由全国微电机标准化技术委员会归口。本标准起草单位:北京敬业电工集团北京市微电机总厂。本标准主要起草人:马秀茹、刘献达。原标准首次发布日期为1980年7月1日,标准编号为JB2663—80:此次是对1980年部标准的第1次修订
本标推委托全国微电机标准化技术委员会负责解释。I
颊魁鹭佤艺
JB/T26631999
JB266380
本标准规定了ADP系列交流伺服电动机的技术要求、试验方法、检验规则及频量保证期和标志、包装、运输、贮存。
本标准适用于ADI系列交流何服电动机,该系列电动机是防护式两相电容杯形转子异步电动机:引用标准
下列标准所包含的条文,通过在本标准中引用而构成为本标准的条文,在标准出版时,所小版本均为有效。所有标准都会被修订,使用本标准的各方应探讨使用下列标准最新版本的可能性GB/T 2828—1987
GB/T 2900.26—1994
GB/T 7345—1994
JB/T8162-[999
3产品分类
3.1型号
逐批检查计数抽样程序及抽样表电工术语控制电机
控制微电机基本技术要求
控制微电机包装技术条件
电机型号由下列部分组成:
机座号及性能参数代号
产品名称代号
3.1.1产品名称代号
ADP一交流伺服电动机
3.1.2机座号及性能参数代号
1,120,123,123B,202,261,262,263263A,362,363363A,562,563A分别表示不同的机座号及能参数。
3.1.3型号示例
ADP—263A是指2号机座并符合263A性能参数的交流伺服电动机。3.2外形及安装尺
鱻极慢1999-08-06瘤
2001-01-01小缆
JB/T26631999
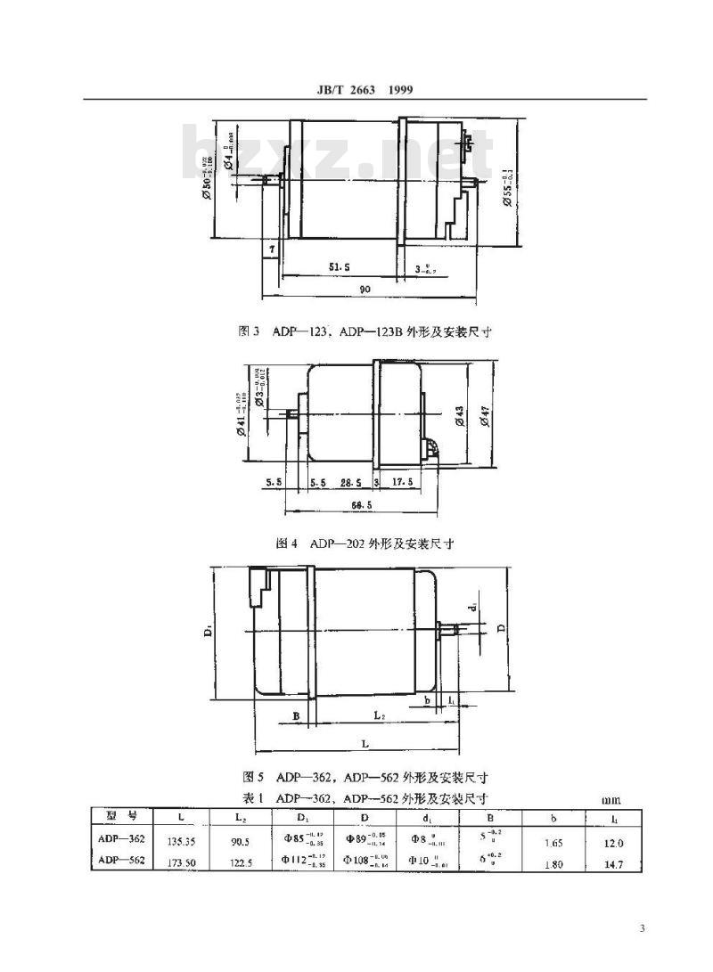
电机的外形及安装尺时应符合图1~图6及表1-表2的规定。a)ADP—1电机应符合图1规定:
b)ADP—120电机应符合图2规定;c)ADP—123,ADP—123B电机应符个图3规定d)ADP—202中机应符合图4规定;e)ADP—-362,ADP--562中机应符图5及表1规定;f) ADP—261,ADP262,ADP263,ADP--263A,ADP—363,ADP—363A,ADP—563A 电机应符合图6及表2规定。
ADP—1外形及安装尺寸
图2ADP--120外形及安尺寸
ADP—362
ADP—562
JB/T2663
图3 ADP—123,ADP—123B 外形及安装尺寸5.5
图4ADP—202外形及安装尺寸
图5ADP—362,ADP—562外形及安装尺寸表 1 ADP-362、ADP-562 外形及安装尺寸D,
4[P—261
ADP—1G2
ADP—263
ADP——2G3A
ADP163
ADP—363A
ADP-563A
3.3电路图
JB/T2663
图6ADP—362,ADP-562外形及安装尺寸表2ADP—261,262,263,263A,363,363A,563A外形及安装尺寸L
电路图如图7所示,
[22 5(1
中74 1
sp89 -12
70-012
小4品.味
LiL或JJ)-激磁绕组;K,。K,—挖制绕组南7
证:ADP--1型电机电穿器串在控制回路。3.4技术性能参数
电机的技术性能参数按表3、表4规定。4
4 *n-2
JB/T2663
田市碑
(OO艺
109元
Op + oCDb
VE95 -dav
9m-dav
we92do
19元-
JB/T2663
00'EtE
COR991
099'91
VE9S—dUV
ve9t—dy
4技术要求
4.1:使用环境条件
JB/T26631999
4.1.1电机的使用环境条件应符合表5规定。表5使用环境条件
ADP—1
ADP—120
ADP-—123
ADP—123B
ADP-—202
ADP—261
ADP-—262
ADP—263
ADP-—263A
ADP-362
ADP—363
ADP--363A
ADP—562
ADP-—563A
- 40~ + 40
40~+50
- 40- + 40
在20℃时
相对凝度
95 ± 3
95 ±3
95 ±3
10,20,30
双报幅
1.4, 0.6, 0.2
1.4 ±0.2
1.4 ± 0.2
4.1.2电机水平位置下能连续运行,对ADP一1电桃在垂直位置亦能正常工作。4.2出线方式、标记
4.2.1出线方式均采用接线板
加速度
4.2.2接线板标记以字母L1,L(或5、J,)表示激磁相绕组接线端,K,K,表示控制相绕红接线端4.3外观和装配质量
4.3.1外观
电机表面不得有锈蚀、碰伤、划狼、涂爱层剥落,紧固件接应牢固,并用磁球点封、接线板及铭牌标志的字迹和内容应清晰无误且不能脱落,引出线应完整无损。4,3.2外形和安装尺寸
电机的外形和安装尺寸应符合3.2条规定。4.3.3轴向间
电机的轴向间隙应符合表6规定。型
ADP—1
ADP—120
ADP—123B
ADP—261
ADP—263
ADP——362
ADP—363A
ADP—563A
轴伸径向圆跳动
ADP—123
ADP—202
ADP—262
ADP-263A
ADP—363
ADP—562
JB/T26631999
表6轴向间
电机的辅神径向圆跳动应不大于0.02mm。4,3.5安装配合面的径向跳动及端面跳动轴向问隙
0.20-0.40
0.15-0.25
0.20-0.50
出机安装配合面的径向圆跳动应不大于0.09mim.凹缘安装配合端跳动应不大于0.10mms4.4静摩擦力矩
电机静摩擦力矩应符合表4的规定,4.5绕组冷态背流电阻bZxz.net
温度为20℃时绕组的直流电阻应符合电机产品图样规定,4.6绝缘介电强度
电机各相绕红对地及绕组之间应能承受50Hz,1000V正弦波电压、历时1min的绝缘介电强度试验而不击穿(对ADP120,ADP—123、ADP—123B型电机绕组相间的试验中为700V)。冷态时电机重女本试验或热态时其试验电压为原试验电压值的75%:4.7绝缘电阻
电机各相绕组对机壳及绕组相间的绝缘电阻应为:a)当温度为20±59和相对湿度为60%-70%时,不小于100M2:b)当温度为20±5℃和相对潮度为60%~70%时,电机在稳定温升时不小于50M2:9当温度为20±5℃和对湿度为95%±3%的恒温凝箱内放置20d后取山,不擦去裘面水分,隔25inin后,在5min内测量不小于1MΩ:对ADP一202型电机,在上述条件下放置5d,在箱中测量不小于0.25Mf,再以额定工作方式运行61后,不小于5MQ:
4.8旋转方向
电机分别按图8、图9、图10接线,电动机的旋转方向从接线板端视之,转轴应顺时针旋转。4.9空载超动电压
电机空裁起动电压应符合表4规定4.10空钱转速及空载时正反转的转速差电机空裁转速及空载正反转的转速差应符合表4规定。4.11额定数据
JB/T26631999
在额定激磁电压,额定频率及额定中容时,对电机施加额定负载转矩,调整控制中压(对ADP-120,ADP-123、ADP—123B,ADP—202型电机,是将控制电压调到最大值)使电机到达额定转速,在电机正反转的情况下,其额定转矩成符合表3规定。4.12堵转数据
在额定激磁电压、额定频率、额定电容及最大控制电压时,分别测量电机的堵转数据应符合表4规定:
4.13单相供电白制动能力
对 ADP一261ADP--262:ADP-263 型申机排行此项试验。电机在额定电压、额定频率时空载运行,断开激磁相绕组,中机应自行停止转动,或者断开控制相绕组,亦应自行停止转动,
对ADP—262则在载1.961mN·条件下进行:4.14单相供电转矩
只对ADP一1型屯机进行单相供电转矩的检查,要求不人于0.147N·n。4.15滑行时间
电机空载,滑行时间应符合表4规定。4.16温升
在额定工作状态下,电机绕组温升应符合表7规定。表了绕组温死
ADP-263A
ADP-—363A
ADP—120
ADP—202
ADP—262
ADP—362
ADP—562
ADP—123
ADP—261
ADP—263
ADP—363
ADP—563A
ADP—123B
注:ADP.-1型电机在微磁相额定申压,额定单和供电频本时,绕组温不人于6SK,4.17负载特性稳定性
对 ADP—123,ADP—123B,ADP--261,ADP--262 型电机转矩的须裁特性应稳定,转速应随着转矩的减小平稳上升,
4.18电机在电源电压与频率变化时应能正常工作。4.18.1
电机的电源电压与频率变化范围见表8。表8电源电压与额牵变化范围
ADP—120
申源电压变化范围
电源频率变化范围
120 ± 5
500 ± 15
ADP—123
ADP—123B
ADP—202
110 ±11
400 ± 20
120 15
330 ±10
ADP—262
ADP—362
ADP562
110±10
50 ± 1.5
ADP—263
ADP-—363
110±10
500±15
AD—263A
ADP—363A
ADP-—563A
35 ± 3.5
500 ±15
JB/T26631999
4.18.2在额定负载转矩、额定电容及最人控制电压时,电源电压与频率尚时按表8改变,相对于额定电源电压和额定频率时所引起的转速变化不超过表9规定。表9源电压与频率同时变化时的转速变化ADP—123
电源电压与频率
同时增加时的转
速变化
电源电压与频率
同时减少时的转
速变化
ADP—1
ADP--123 B
ADP—120
ADP—202
ADP—261
ADP—262ADP—263
ADP—263AADP—362ADP—363
ADP363A ADP562
ADP-S63A
注:ADP—120型电面在电源电压与额率同时增[时,负载转效为2.94mN·m,在心源斥「赖率同时减少时,负载转矩为5.88mV-ml
4.19冲击,振动
4.19.1、电机按表5规定的冲击条件,冲击10min:4.19.2电机按表5规定的振动条件、振动2h(对ADP-120,ADP—123,ADP—123B型电机每种频率各试2h)
试验后,额定数据应符合表3规定,并不应出现零部件的损坏,接触松动,紧固件松动等缺陷。对ADP—123,ADP—123B,ADP-202型机检查空裁起动电压应符个表3规定。对ADP—1型中机检查其额定转速应符合表3规定:4.20低温
在-40±2°℃的温度下,做3h的低温试验,空载起动电压应符合表10规定。表10低温试验时空载起动电压
ADP—123
ADP--123B
ADP—202
AD—261
ADP—262
ADP—362
ADP——263A
ADP—562
ADP—263
ADP—363
ADP—363A
ADP563A
空载起动心压
对ADP一1型电机,在-40±2么的温度下,在额定负载转矩,额定激磁电压及大控制电压下,工作3h,其转速不低于8500r/min:正反转速差不人下500r/min对ADP—120型机,在-40±2℃的温度下,在额定中源中压和频率时中机在额定负载转矩下1作10 min,其转速与额定转速之差不大丁±2%4.21高温
小提示:此标准内容仅展示完整标准里的部分截取内容,若需要完整标准请到上方自行免费下载完整标准文档。
JB/T2663
1999-08-06
颧赣養船
2001-01-01小缆
佤鱻懂
JB/T26631999
本标准是对JB2663—80《ADP系列交流伺服电动机》进行的修订。按照GB/T1.1、GB/T1.22、和GB/T1.3的要求对本标准进行了重新组合与编排、在丰要技术内容不变的情说下对文字进行了一些删改,本标准与标准B2663—80的不尚之处主要是:1本标准势彻基础标准的法定计量单位。2本标准增加了“1范围\。
3本标准增加了“2小用标准”。4本标准增了“3产品分类”。
5本标准将原标准“三验收规则”修改为“6检验规则”和“7质量保证期”。6本标准将原标准“四标志、包装、运输和保管”修改为“8标志、包装、运输利贮存”。说明:对于AⅡⅡI一1型电机,与ADP—1电机相比只是结构不向,在主要外形尺寸、电气原额定数据、技术数据、检测方法...等均同,为此本标准中术列人,对AⅡIⅡI一1型电机的检测均按ADP—1型电机技术要求。
本标准自实施之日起代替JB2663—80。本标准由全国微电机标准化技术委员会归口。本标准起草单位:北京敬业电工集团北京市微电机总厂。本标准主要起草人:马秀茹、刘献达。原标准首次发布日期为1980年7月1日,标准编号为JB2663—80:此次是对1980年部标准的第1次修订
本标推委托全国微电机标准化技术委员会负责解释。I
颊魁鹭佤艺
JB/T26631999
JB266380
本标准规定了ADP系列交流伺服电动机的技术要求、试验方法、检验规则及频量保证期和标志、包装、运输、贮存。
本标准适用于ADI系列交流何服电动机,该系列电动机是防护式两相电容杯形转子异步电动机:引用标准
下列标准所包含的条文,通过在本标准中引用而构成为本标准的条文,在标准出版时,所小版本均为有效。所有标准都会被修订,使用本标准的各方应探讨使用下列标准最新版本的可能性GB/T 2828—1987
GB/T 2900.26—1994
GB/T 7345—1994
JB/T8162-[999
3产品分类
3.1型号
逐批检查计数抽样程序及抽样表电工术语控制电机
控制微电机基本技术要求
控制微电机包装技术条件
电机型号由下列部分组成:
机座号及性能参数代号
产品名称代号
3.1.1产品名称代号
ADP一交流伺服电动机
3.1.2机座号及性能参数代号
1,120,123,123B,202,261,262,263263A,362,363363A,562,563A分别表示不同的机座号及能参数。
3.1.3型号示例
ADP—263A是指2号机座并符合263A性能参数的交流伺服电动机。3.2外形及安装尺
鱻极慢1999-08-06瘤
2001-01-01小缆
JB/T26631999
电机的外形及安装尺时应符合图1~图6及表1-表2的规定。a)ADP—1电机应符合图1规定:
b)ADP—120电机应符合图2规定;c)ADP—123,ADP—123B电机应符个图3规定d)ADP—202中机应符合图4规定;e)ADP—-362,ADP--562中机应符图5及表1规定;f) ADP—261,ADP262,ADP263,ADP--263A,ADP—363,ADP—363A,ADP—563A 电机应符合图6及表2规定。
ADP—1外形及安装尺寸
图2ADP--120外形及安尺寸
ADP—362
ADP—562
JB/T2663
图3 ADP—123,ADP—123B 外形及安装尺寸5.5
图4ADP—202外形及安装尺寸
图5ADP—362,ADP—562外形及安装尺寸表 1 ADP-362、ADP-562 外形及安装尺寸D,
4[P—261
ADP—1G2
ADP—263
ADP——2G3A
ADP163
ADP—363A
ADP-563A
3.3电路图
JB/T2663
图6ADP—362,ADP-562外形及安装尺寸表2ADP—261,262,263,263A,363,363A,563A外形及安装尺寸L
电路图如图7所示,
[22 5(1
中74 1
sp89 -12
70-012
小4品.味
LiL或JJ)-激磁绕组;K,。K,—挖制绕组南7
证:ADP--1型电机电穿器串在控制回路。3.4技术性能参数
电机的技术性能参数按表3、表4规定。4
4 *n-2
JB/T2663
田市碑
(OO艺
109元
Op + oCDb
VE95 -dav
9m-dav
we92do
19元-
JB/T2663
00'EtE
COR991
099'91
VE9S—dUV
ve9t—dy
4技术要求
4.1:使用环境条件
JB/T26631999
4.1.1电机的使用环境条件应符合表5规定。表5使用环境条件
ADP—1
ADP—120
ADP-—123
ADP—123B
ADP-—202
ADP—261
ADP-—262
ADP—263
ADP-—263A
ADP-362
ADP—363
ADP--363A
ADP—562
ADP-—563A
- 40~ + 40
40~+50
- 40- + 40
在20℃时
相对凝度
95 ± 3
95 ±3
95 ±3
10,20,30
双报幅
1.4, 0.6, 0.2
1.4 ±0.2
1.4 ± 0.2
4.1.2电机水平位置下能连续运行,对ADP一1电桃在垂直位置亦能正常工作。4.2出线方式、标记
4.2.1出线方式均采用接线板
加速度
4.2.2接线板标记以字母L1,L(或5、J,)表示激磁相绕组接线端,K,K,表示控制相绕红接线端4.3外观和装配质量
4.3.1外观
电机表面不得有锈蚀、碰伤、划狼、涂爱层剥落,紧固件接应牢固,并用磁球点封、接线板及铭牌标志的字迹和内容应清晰无误且不能脱落,引出线应完整无损。4,3.2外形和安装尺寸
电机的外形和安装尺寸应符合3.2条规定。4.3.3轴向间
电机的轴向间隙应符合表6规定。型
ADP—1
ADP—120
ADP—123B
ADP—261
ADP—263
ADP——362
ADP—363A
ADP—563A
轴伸径向圆跳动
ADP—123
ADP—202
ADP—262
ADP-263A
ADP—363
ADP—562
JB/T26631999
表6轴向间
电机的辅神径向圆跳动应不大于0.02mm。4,3.5安装配合面的径向跳动及端面跳动轴向问隙
0.20-0.40
0.15-0.25
0.20-0.50
出机安装配合面的径向圆跳动应不大于0.09mim.凹缘安装配合端跳动应不大于0.10mms4.4静摩擦力矩
电机静摩擦力矩应符合表4的规定,4.5绕组冷态背流电阻bZxz.net
温度为20℃时绕组的直流电阻应符合电机产品图样规定,4.6绝缘介电强度
电机各相绕红对地及绕组之间应能承受50Hz,1000V正弦波电压、历时1min的绝缘介电强度试验而不击穿(对ADP120,ADP—123、ADP—123B型电机绕组相间的试验中为700V)。冷态时电机重女本试验或热态时其试验电压为原试验电压值的75%:4.7绝缘电阻
电机各相绕组对机壳及绕组相间的绝缘电阻应为:a)当温度为20±59和相对湿度为60%-70%时,不小于100M2:b)当温度为20±5℃和相对潮度为60%~70%时,电机在稳定温升时不小于50M2:9当温度为20±5℃和对湿度为95%±3%的恒温凝箱内放置20d后取山,不擦去裘面水分,隔25inin后,在5min内测量不小于1MΩ:对ADP一202型电机,在上述条件下放置5d,在箱中测量不小于0.25Mf,再以额定工作方式运行61后,不小于5MQ:
4.8旋转方向
电机分别按图8、图9、图10接线,电动机的旋转方向从接线板端视之,转轴应顺时针旋转。4.9空载超动电压
电机空裁起动电压应符合表4规定4.10空钱转速及空载时正反转的转速差电机空裁转速及空载正反转的转速差应符合表4规定。4.11额定数据
JB/T26631999
在额定激磁电压,额定频率及额定中容时,对电机施加额定负载转矩,调整控制中压(对ADP-120,ADP-123、ADP—123B,ADP—202型电机,是将控制电压调到最大值)使电机到达额定转速,在电机正反转的情况下,其额定转矩成符合表3规定。4.12堵转数据
在额定激磁电压、额定频率、额定电容及最大控制电压时,分别测量电机的堵转数据应符合表4规定:
4.13单相供电白制动能力
对 ADP一261ADP--262:ADP-263 型申机排行此项试验。电机在额定电压、额定频率时空载运行,断开激磁相绕组,中机应自行停止转动,或者断开控制相绕组,亦应自行停止转动,
对ADP—262则在载1.961mN·条件下进行:4.14单相供电转矩
只对ADP一1型屯机进行单相供电转矩的检查,要求不人于0.147N·n。4.15滑行时间
电机空载,滑行时间应符合表4规定。4.16温升
在额定工作状态下,电机绕组温升应符合表7规定。表了绕组温死
ADP-263A
ADP-—363A
ADP—120
ADP—202
ADP—262
ADP—362
ADP—562
ADP—123
ADP—261
ADP—263
ADP—363
ADP—563A
ADP—123B
注:ADP.-1型电机在微磁相额定申压,额定单和供电频本时,绕组温不人于6SK,4.17负载特性稳定性
对 ADP—123,ADP—123B,ADP--261,ADP--262 型电机转矩的须裁特性应稳定,转速应随着转矩的减小平稳上升,
4.18电机在电源电压与频率变化时应能正常工作。4.18.1
电机的电源电压与频率变化范围见表8。表8电源电压与额牵变化范围
ADP—120
申源电压变化范围
电源频率变化范围
120 ± 5
500 ± 15
ADP—123
ADP—123B
ADP—202
110 ±11
400 ± 20
120 15
330 ±10
ADP—262
ADP—362
ADP562
110±10
50 ± 1.5
ADP—263
ADP-—363
110±10
500±15
AD—263A
ADP—363A
ADP-—563A
35 ± 3.5
500 ±15
JB/T26631999
4.18.2在额定负载转矩、额定电容及最人控制电压时,电源电压与频率尚时按表8改变,相对于额定电源电压和额定频率时所引起的转速变化不超过表9规定。表9源电压与频率同时变化时的转速变化ADP—123
电源电压与频率
同时增加时的转
速变化
电源电压与频率
同时减少时的转
速变化
ADP—1
ADP--123 B
ADP—120
ADP—202
ADP—261
ADP—262ADP—263
ADP—263AADP—362ADP—363
ADP363A ADP562
ADP-S63A
注:ADP—120型电面在电源电压与额率同时增[时,负载转效为2.94mN·m,在心源斥「赖率同时减少时,负载转矩为5.88mV-ml
4.19冲击,振动
4.19.1、电机按表5规定的冲击条件,冲击10min:4.19.2电机按表5规定的振动条件、振动2h(对ADP-120,ADP—123,ADP—123B型电机每种频率各试2h)
试验后,额定数据应符合表3规定,并不应出现零部件的损坏,接触松动,紧固件松动等缺陷。对ADP—123,ADP—123B,ADP-202型机检查空裁起动电压应符个表3规定。对ADP—1型中机检查其额定转速应符合表3规定:4.20低温
在-40±2°℃的温度下,做3h的低温试验,空载起动电压应符合表10规定。表10低温试验时空载起动电压
ADP—123
ADP--123B
ADP—202
AD—261
ADP—262
ADP—362
ADP——263A
ADP—562
ADP—263
ADP—363
ADP—363A
ADP563A
空载起动心压
对ADP一1型电机,在-40±2么的温度下,在额定负载转矩,额定激磁电压及大控制电压下,工作3h,其转速不低于8500r/min:正反转速差不人下500r/min对ADP—120型机,在-40±2℃的温度下,在额定中源中压和频率时中机在额定负载转矩下1作10 min,其转速与额定转速之差不大丁±2%4.21高温
小提示:此标准内容仅展示完整标准里的部分截取内容,若需要完整标准请到上方自行免费下载完整标准文档。
标准图片预览:





- 其它标准
- 热门标准
- 机械行业标准(JB)
- JB/T7893.1-1999 立式振动离心机
- JB/T7899-1999 填充聚四氟乙烯软带导轨 技术条件
- JB/T7938-1999 液压泵站油箱公称容量系列
- JB/T1625-2002 工业锅炉焊接管孔
- JB/T7850-1995 手夹快换接头
- JB/T7952-1995 空气净化器
- JB/T8009.4-1999 机床夹具零件及部件 弧形压块
- JB/T7936-1999 直廓环面蜗杆减速器
- JB/T7939-1999 单活塞杆液压缸两腔面积比
- JB/T7941.2-1995 旋入式圆形油杯
- JB/T7946.2-1999 铸造铝硅合金过烧
- JB/T7925.2-1995 滑动轴承 多层轴承减摩合金硬度检验方法
- JB/T7828-1995 继电器及其装置包装贮运技术条件
- JB/T7945-1999 灰铸铁机械性能试验方法
- JB/T7966.3-1999 模具铣刀 第 3 部分:莫氏锥柄圆柱形球头立铣刀
- 行业新闻
请牢记:“bzxz.net”即是“标准下载”四个汉字汉语拼音首字母与国际顶级域名“.net”的组合。 ©2025 标准下载网 www.bzxz.net 本站邮件:bzxznet@163.com
网站备案号:湘ICP备2025141790号-2
网站备案号:湘ICP备2025141790号-2