- 您的位置:
- 标准下载网 >>
- 标准分类 >>
- 电子行业标准(SJ) >>
- SJ 20382-1993 带导热条印制板的锁紧装置
标准号:
SJ 20382-1993
标准名称:
带导热条印制板的锁紧装置
标准类别:
电子行业标准(SJ)
标准状态:
已作废-
发布日期:
1993-05-11 -
实施日期:
1993-07-01 -
作废日期:
2007-12-01 出版语种:
简体中文下载格式:
.rar.pdf下载大小:
153.61 KB
替代情况:
被SJ 20382-2007代替
部分标准内容:
中华人民共和国电子行业军用标准FL5325
SJ20382-93
带导热条印制板的锁紧装置
Locking device for PCB with conductive strip1993-05-11发布
1993-07-01实施
中华人民共和国电子工业部
滑块1
要求:
SJ20382.1/1
SJ20382.1/2
需块?
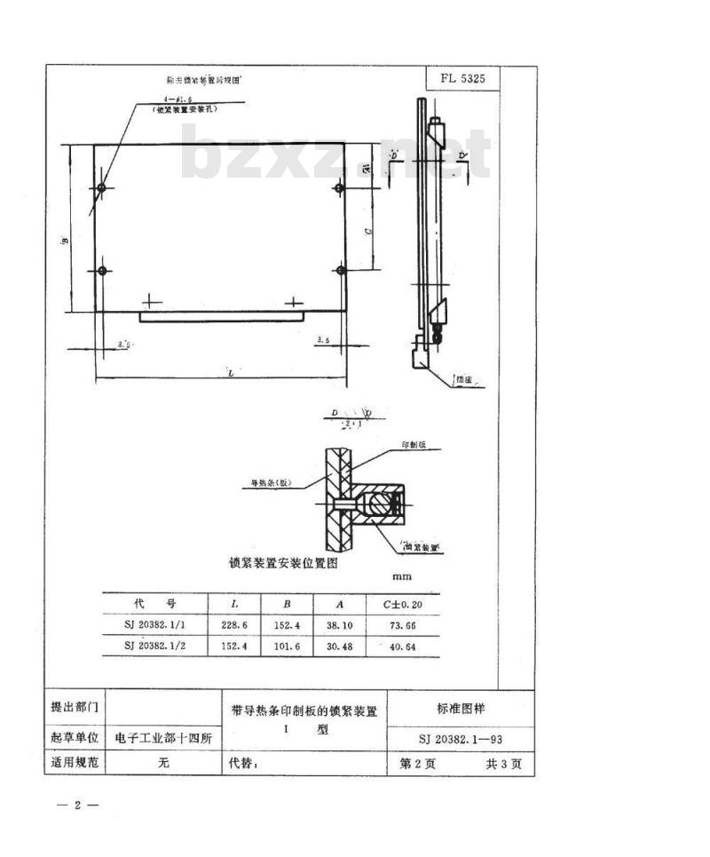
1锁紧装置与印制板、导热条(板)的装配关系及安装尺寸见下图。图中印制板尺寸仅为推荐使用的尺寸。提出部门
起草单位
适用规范
电子工业部十四所
带导热条印制板的锁紧装置
代替:
中华人民共和国电子工业部19930511发布型
FL5325
标准图样
SJ20382.1—93
第1页
共3页bzxZ.net
1993-07-01实施
提出部门
起草单位
适用规范
除去锁霜著置后视图
(锁案装置安装孔)
导热条(板)
锁紧装置安装位置图
SJ20382.1/1
SJ20382.1/2
电子工业部十四所
带导热条印制板的锁紧装置
代替:
印制板
FL5325
高系装置
标准图样
SJ20382.1--93
第2页
共3页
2材料
滑块1:铝合金;
簧片:铍青铜带:
滑块2:不锈钢;
滑座:铝合金;
螺钉:不锈钢。
3表面处理
铝合金构件:电化学氧化;
簧片:镀镍;
不锈钢构件:钝化。
4热处理
簧片HV340~360。
5螺钉头端部形式可为:
内大情
一字推
6本装置经2000次的锁紧和松开后,性能不降低。十字撞
FL5325
本装置在工作状态承受符合GJB150.16中2.3.5条规定的试验条件,按4.2条程序I进行的振动试验后,以及承受GJB150.18中试验六的冲击试验后不失效。提出部门
起草单位
适用规范
电子工业部十四所
带导热条印制板的锁紧装置
代替:
标准图样
SJ20382.193
第3页
共3页
要求:
滑块!
35.56±G.20
洲座,
滑块2
FL5325
请块3
锁紧装置与印制板、导热条(板)的装配关系及安装尺寸见下图,图中印制板尺寸仅为推荐使用的尺寸。
2材料
滑块1:铝合金;
簧片:铍青铜带;
滑块2:铝合金
滑座:铝合金;
滑块3.不锈钢;
螺钉:不锈钢。
提出部门
起草单位
适用规范
电子工业部十四所
带导热条印制板的锁紧装置
代替:
中华人民共和国电子工业部1993-05-11发布型
标准图样
SJ20382.2—93
第1页
共3页
1993-07-01实施
提出部门
起草单位
适用规范
除专地紧装置后视围
(微紧装量安装孔)
零热条(板)
锁紧装置安装位置图
锁紫装置
带导热条印制板的锁紧装置
电子工业部十四所
代替:
FL5325
标准图样
SJ20382.2—93
第2页
共3页
3表面处理
铝合金构件:电化学氧化,
簧片:镀镍;
不锈钢构件:钝化。
热处理
簧片:HV340~360。
5螺钉头端部形式可为:
内六角
一字框,
6本装置经2000次的锁紧和松开后,性能不降低。十字情
FL5325
本装置在工作状态承受符合GJB150.16中2.3.5条规定的试验条件,按4.2条程序I进行的振动试验后,以及承受GJB150.18中试验六的冲击试验后不失效。提出部门
起草单位
适用规范
电子工业部十四所
附加说明:
带导热条印制板的锁紧装置
代替:
本标准由中国电子技术标准化研究所归口。本标准由电子工业部第十四研究所起草。本标准主要起草人:刘彩娟、严焕兴、汤伟强、平丽浩、冯长有。计划项目代号:B14001
标准图样
SJ20382.2—93
第3页
共3页
小提示:此标准内容仅展示完整标准里的部分截取内容,若需要完整标准请到上方自行免费下载完整标准文档。
SJ20382-93
带导热条印制板的锁紧装置
Locking device for PCB with conductive strip1993-05-11发布
1993-07-01实施
中华人民共和国电子工业部
滑块1
要求:
SJ20382.1/1
SJ20382.1/2
需块?
1锁紧装置与印制板、导热条(板)的装配关系及安装尺寸见下图。图中印制板尺寸仅为推荐使用的尺寸。提出部门
起草单位
适用规范
电子工业部十四所
带导热条印制板的锁紧装置
代替:
中华人民共和国电子工业部19930511发布型
FL5325
标准图样
SJ20382.1—93
第1页
共3页bzxZ.net
1993-07-01实施
提出部门
起草单位
适用规范
除去锁霜著置后视图
(锁案装置安装孔)
导热条(板)
锁紧装置安装位置图
SJ20382.1/1
SJ20382.1/2
电子工业部十四所
带导热条印制板的锁紧装置
代替:
印制板
FL5325
高系装置
标准图样
SJ20382.1--93
第2页
共3页
2材料
滑块1:铝合金;
簧片:铍青铜带:
滑块2:不锈钢;
滑座:铝合金;
螺钉:不锈钢。
3表面处理
铝合金构件:电化学氧化;
簧片:镀镍;
不锈钢构件:钝化。
4热处理
簧片HV340~360。
5螺钉头端部形式可为:
内大情
一字推
6本装置经2000次的锁紧和松开后,性能不降低。十字撞
FL5325
本装置在工作状态承受符合GJB150.16中2.3.5条规定的试验条件,按4.2条程序I进行的振动试验后,以及承受GJB150.18中试验六的冲击试验后不失效。提出部门
起草单位
适用规范
电子工业部十四所
带导热条印制板的锁紧装置
代替:
标准图样
SJ20382.193
第3页
共3页
要求:
滑块!
35.56±G.20
洲座,
滑块2
FL5325
请块3
锁紧装置与印制板、导热条(板)的装配关系及安装尺寸见下图,图中印制板尺寸仅为推荐使用的尺寸。
2材料
滑块1:铝合金;
簧片:铍青铜带;
滑块2:铝合金
滑座:铝合金;
滑块3.不锈钢;
螺钉:不锈钢。
提出部门
起草单位
适用规范
电子工业部十四所
带导热条印制板的锁紧装置
代替:
中华人民共和国电子工业部1993-05-11发布型
标准图样
SJ20382.2—93
第1页
共3页
1993-07-01实施
提出部门
起草单位
适用规范
除专地紧装置后视围
(微紧装量安装孔)
零热条(板)
锁紧装置安装位置图
锁紫装置
带导热条印制板的锁紧装置
电子工业部十四所
代替:
FL5325
标准图样
SJ20382.2—93
第2页
共3页
3表面处理
铝合金构件:电化学氧化,
簧片:镀镍;
不锈钢构件:钝化。
热处理
簧片:HV340~360。
5螺钉头端部形式可为:
内六角
一字框,
6本装置经2000次的锁紧和松开后,性能不降低。十字情
FL5325
本装置在工作状态承受符合GJB150.16中2.3.5条规定的试验条件,按4.2条程序I进行的振动试验后,以及承受GJB150.18中试验六的冲击试验后不失效。提出部门
起草单位
适用规范
电子工业部十四所
附加说明:
带导热条印制板的锁紧装置
代替:
本标准由中国电子技术标准化研究所归口。本标准由电子工业部第十四研究所起草。本标准主要起草人:刘彩娟、严焕兴、汤伟强、平丽浩、冯长有。计划项目代号:B14001
标准图样
SJ20382.2—93
第3页
共3页
小提示:此标准内容仅展示完整标准里的部分截取内容,若需要完整标准请到上方自行免费下载完整标准文档。
标准图片预览:





- 其它标准
- 热门标准
- 电子行业标准(SJ)
- SJ3166-1988 GZS12-4-3型彩色显像管插座
- SJ783-1974 3DG101型NPN硅外延平面高频小功率三极管
- SJ2857.2-1988 温差电致冷材料性能的测试方法 电导率的测试方法
- SJ2879-1988 彩色电视接收机用色纯静会聚磁体组合件总规范
- SJ/T9546-1993 无金属化孔单、双面印制板的质量分等标准
- SJ/T31063-1994 TCM-B三氯乙烯清洗机完好要求和检查评定方法
- SJ/T31168-1994 发射管电性能测试电源完好要求和检查评定方法
- SJ/T31384-1994 洗衣机定时器寿命试验台完好要求和检查评定方法
- SJ/T31441-1994 离心式制冷机组完好要求和检查评定方法
- SJ/T31449-1994 供油管道完好要求和检查评定方法
- SJ20837-2002 仪表着陆系统选址要求
- SJ/T10401-1993 半导体集成音响电路马达稳速电路测试方法的基本原理
- SJ/T10455-1993 厚膜混合集成电路用铜导体浆料
- SJ/T11010-1996 电子器件详细规范 半导体电视集成电路CD1124ACP伴音中频放大电路
- SJ/T11088-1996 电子器件详细规范 半导体集成电路CD7680CP图象伴音中频放大电路
- 行业新闻
请牢记:“bzxz.net”即是“标准下载”四个汉字汉语拼音首字母与国际顶级域名“.net”的组合。 ©2025 标准下载网 www.bzxz.net 本站邮件:bzxznet@163.com
网站备案号:湘ICP备2025141790号-2
网站备案号:湘ICP备2025141790号-2