- 您的位置:
- 标准下载网 >>
- 标准分类 >>
- 其他行业标准 >>
- CB/T 4190-2011伸缩型舷梯
标准号:
CB/T 4190-2011
标准名称:
伸缩型舷梯
标准类别:
其他行业标准
英文名称:
Telescopic accommodation ladders标准状态:
现行-
发布日期:
2011-06-15 -
实施日期:
2011-10-01 出版语种:
简体中文下载格式:
.pdf .zip下载大小:
4.61 MB
部分标准内容:
ICS47.020.50
备案号:32930-2011
中华人民共和国船舶行业标准
CB/T4190—2011
伸缩型梯
Telescopicaccommodationladders2011-06-15发布
中华人民共和国工业和信息化部(刮)内置防伪码
真品标识谨防仿冒
2011-10-01实施
CB/T4190—2011
本标准规定的伸缩型梯宽度、踏步间距、伸缩长度、栏杆高度和强度,符合国际标准IS05488:1979《造船梯》的要求。
本标准由中国船舶重工集团公司提出。本标准由中国船舶重工集团公司标准化研究中心归口。本标准起草单位:大连船舶重工集团有限公司、江苏姜堰市船舶晒装件有限公司。本标准起草人:曲德选、杨社建、蔡伟玄、马玉龙、王晓彬、杨霖。1
1范围
伸缩型炫梯
CB/T4190—2011
本标准规定了伸缩型眩梯的结构和尺小、要求、试验方法、检验规则、标志、包装、运输和贮存等。本标准适用于伸缩型航梯的设评2规范性引用文件
下列文件对于本文
是必不
可少的。
件。凡是不注日期的文集,
GB/T549—208
GB/T699-
GB/T700-
GB/T1176
GB/T1220-
GB/T5574
GB/T6892
GB/T6893
GB8918
GB/T8923
CB*/Z92
CB/Z343
3结构和尺寸
电焊锚链
质碳素结构
素结构钢
铸造铜合金技术条件
不锈钢棒
工业用橡胶板
注日期的引用文件
包括所有的修改单
工业用铝及铝合金热挤压型材
铝及铝合金拉
重要用途钢丝绳
涂装前钢材表
金隔极氧化处理
船用配件热浸镀锌
伸缩型航梯的结构和尺寸
制无缝管
面锈蚀等级及除锈等级
伸缩型梯的结构和尺见肉4和表
仅质注日期的版本适用于本文
适用文件
CB/T4190—2011
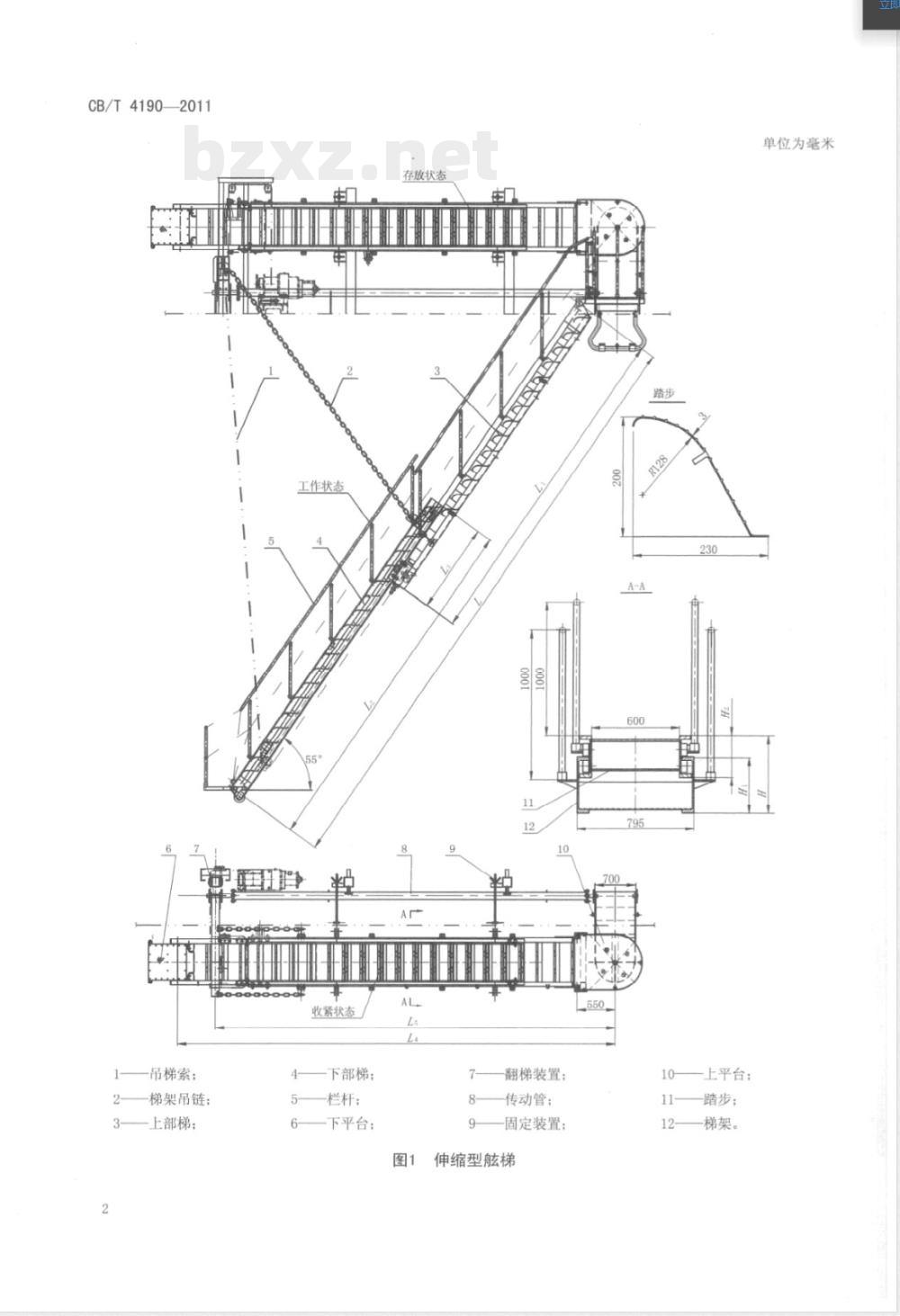
吊梯索;
梯架吊链:
一上部梯;
工作状态
收紧状态
下部梯;
栏杆;
6——下平台;
存放状态
一翻梯装置:
传动管:
9—固定装置:
伸缩型梯
上平台:
—踏步:
12——梯架。
单位为毫米
伸缩型梯的尺寸
CB/T4190—2011
单位为毫米
梯架型材
L100×60×8
L100X80X8
L100×80×10/15
L140×80X10/18
L140X80X10/25
CB/T4190—2011
翻梯装置的结构和尺寸
翻梯装置的结构和尺寸见图2、表2。淮类
一立柱;
翻转吊链:
翻梯装置。
图2翻梯装置
单位为毫米
踏步级数
翻梯装置和固定装置的尺寸
950、
1000、
1100、
1150、
1250、
1350、
1450、
CB/T4190—2011
单位为毫米
CB/T4190—2011
固定装置的结构和尺寸
固定装置的结构和尺寸见图3、表2。1
一立柱;
一防撞垫;
3-钩;
4——蝶形螺母。
3.4标记示例
踏步级数为76级的伸缩型梯标记为:伸缩型梯
CB/T4190—201176
4要求
4.1材料
伸缩型航梯主要零件的材料见表3。6
固定装置
单位为毫米
零件名称
上平台,下平台
翻梯装置
固定装置
梯架吊链,翻转吊链
吊梯索
传动管
防撞垫
蝶形螺母
尺寸公差
伸缩型航梯的尺寸公差见表4。
梯架直线度
梯长L
梯架高度
踏步间距
伸缩型梯主要零件的材料
防锈铝
碳素结构钢
一级锚链
镀锌钢丝绳
无缝钢管
不锈钢
锰黄铜
5A05(LF5)
2A12(LY12)
5A02(LF2)
6×37-170-甲镀-右
工业用橡胶板
OCr18Ni9
ZCuZn40Mn2
4尺寸公差
允许公差
1/1000
梯架平直度
梯架扭曲度bZxz.net
梯架宽度
伸缩型梯焊接部位焊缝表面应无裂纹、夹渣、烧穿、未熔焊等缺陷。CB/T4190—2011
标准号
GB/T6892—2000
GB/T6893—2000
GB/T 6892—2000
GB/T700—2006
GB/T549—2008
GB8918—2006
GB/T699—1999
GB/T 5574—2008
GB/T1220—2007
GB/T 1176—1987
单位为毫米
允许公差
中拱1.5/1000
中垂1/1000
每10m长梯架平面内5mm
伸缩型梯制造后表面应无毛刺、裂纹,锐边应倒圆。不应有歪斜、扭曲和变形等缺陷4.4防锈
伸缩型航梯的上平台、下平台、立柱和固定装置除锈应不低于GB/T8923一1988中规定的Sa2.54.4.1
级或St3级,并涂防锈底漆两度,其他钢质零件按应CB/Z343进行热浸锌。活动部位应涂中性润滑脂。4.4.2伸缩型航梯的铝质件按CB/Z92进行氧化处理、4.4.3
钢质零件与铝质件接触面应加多硫橡胶垫。4.5
CB/T4190—2011
4.5.1伸缩型航梯的上平台施加4000N、下平台施加1470N的负荷,卸去负荷后上、下平台不应有损坏和永久变形。
4.5.2上部梯和下部梯每级踏步放置735N的负荷,此时挠度不超过75/L,卸去负荷后上部梯和下部梯不应有损坏和永久变形。
4.6性能
伸缩型炫梯的上部梯、下部梯、上平台、下平台、翻梯装置、紧固装置、吊索和吊链装配后应在台架上进行伸缩性能试验,整套伸缩型航梯设备运行时应同步和灵活,不应有卡滞现象。5试验方法
5.1材料
的方润
用检查其牌号和质量保证
5.2尺寸公差
用常规量具测
5.3外观
通过目视及
5.4防锈
按GB/T892
果应符合4.4的要
5.5强度
型梯的尺
检验伸缩
吉果应
差。结果应符合3.1
查伸缩型航梯的外观
343规定的方法对1
8、CB*/Z92和CB/7
5.5.1伸缩航梯的
的要求。
5.5.2伸缩航梯的
平合和下平台分别施加4000N、1470N的静
大部梯呈水平状态分另
微要求。
2、3.3和4.的谢寸
3的要求。
电缩型炫梯的零件表面进行防锈检查。结有
保持15
两端主
结果应符合4.5.1
每级踏步放置735N的负
结果应符
荷,历时15min,测量其挠度应符合4.52的要求。卸去负荷后,5.6性能
1.5.2的要求。
伸缩型航梯应进行整体的性能试验试验按下列步骤进行:伸出试验:伸缩型梯安装在试验台上,将航梯翻转出贰验台呈水平状态。调节好梯架吊链长a)
度,启动绞车,使航梯渐渐下降至与水平面呈25°(最大至55°)状态,然后继续启动绞车使下部梯从上部梯中(上)滑出,使其伸至最大使用长度停留5min;缩进试验:启动绞车使下部梯收缩,并使整个梯收缩到最小收藏状态。将梯提升呈水平状b)
态并翻转梯90°进入试验台成收藏状态。伸出试验与缩进试验反复做三次。结果应符合4.6的要求。6检验规则
6.1检验分类
伸缩型航梯的检验分为型式检验和出厂检验。6.2型式检验
检验时机
伸缩型梯制造有下列情况之一时,应进行型式检验:a)
首次生产或转厂生产;
结构、材料或工艺有重大改变足以影响产品性能:长期停产后恢复生产;
出厂检验结果与上次型式检验有较大差异:质量检验部门要求。
检验项目和顺序
伸缩型航梯型式检验项目和顺序见表5。表5
检验项目
尺寸公差
注:●必检项目。
检验样品数量
伸缩型航梯的检验项目和顺序
型式检验
出厂检验
要求的章、条号
伸缩型梯的型式检验样品数量为取制造厂实际制造最大的规格一台。判定规则
CB/T4190—2011
试验方法的章、务
所有检验项目符合要求,则判定伸缩型航梯的型式检验合格。若有不符合要求的项目,则判定伸缩型航梯型式检验不合格。
出厂检验
检验项目和顺序
伸缩型炫梯的出厂检验项目和顺序见表5。6.3.2
检验样品数量
伸缩型梯出厂检验应逐台进行。6.3.3判定规则
小提示:此标准内容仅展示完整标准里的部分截取内容,若需要完整标准请到上方自行免费下载完整标准文档。
备案号:32930-2011
中华人民共和国船舶行业标准
CB/T4190—2011
伸缩型梯
Telescopicaccommodationladders2011-06-15发布
中华人民共和国工业和信息化部(刮)内置防伪码
真品标识谨防仿冒
2011-10-01实施
CB/T4190—2011
本标准规定的伸缩型梯宽度、踏步间距、伸缩长度、栏杆高度和强度,符合国际标准IS05488:1979《造船梯》的要求。
本标准由中国船舶重工集团公司提出。本标准由中国船舶重工集团公司标准化研究中心归口。本标准起草单位:大连船舶重工集团有限公司、江苏姜堰市船舶晒装件有限公司。本标准起草人:曲德选、杨社建、蔡伟玄、马玉龙、王晓彬、杨霖。1
1范围
伸缩型炫梯
CB/T4190—2011
本标准规定了伸缩型眩梯的结构和尺小、要求、试验方法、检验规则、标志、包装、运输和贮存等。本标准适用于伸缩型航梯的设评2规范性引用文件
下列文件对于本文
是必不
可少的。
件。凡是不注日期的文集,
GB/T549—208
GB/T699-
GB/T700-
GB/T1176
GB/T1220-
GB/T5574
GB/T6892
GB/T6893
GB8918
GB/T8923
CB*/Z92
CB/Z343
3结构和尺寸
电焊锚链
质碳素结构
素结构钢
铸造铜合金技术条件
不锈钢棒
工业用橡胶板
注日期的引用文件
包括所有的修改单
工业用铝及铝合金热挤压型材
铝及铝合金拉
重要用途钢丝绳
涂装前钢材表
金隔极氧化处理
船用配件热浸镀锌
伸缩型航梯的结构和尺寸
制无缝管
面锈蚀等级及除锈等级
伸缩型梯的结构和尺见肉4和表
仅质注日期的版本适用于本文
适用文件
CB/T4190—2011
吊梯索;
梯架吊链:
一上部梯;
工作状态
收紧状态
下部梯;
栏杆;
6——下平台;
存放状态
一翻梯装置:
传动管:
9—固定装置:
伸缩型梯
上平台:
—踏步:
12——梯架。
单位为毫米
伸缩型梯的尺寸
CB/T4190—2011
单位为毫米
梯架型材
L100×60×8
L100X80X8
L100×80×10/15
L140×80X10/18
L140X80X10/25
CB/T4190—2011
翻梯装置的结构和尺寸
翻梯装置的结构和尺寸见图2、表2。淮类
一立柱;
翻转吊链:
翻梯装置。
图2翻梯装置
单位为毫米
踏步级数
翻梯装置和固定装置的尺寸
950、
1000、
1100、
1150、
1250、
1350、
1450、
CB/T4190—2011
单位为毫米
CB/T4190—2011
固定装置的结构和尺寸
固定装置的结构和尺寸见图3、表2。1
一立柱;
一防撞垫;
3-钩;
4——蝶形螺母。
3.4标记示例
踏步级数为76级的伸缩型梯标记为:伸缩型梯
CB/T4190—201176
4要求
4.1材料
伸缩型航梯主要零件的材料见表3。6
固定装置
单位为毫米
零件名称
上平台,下平台
翻梯装置
固定装置
梯架吊链,翻转吊链
吊梯索
传动管
防撞垫
蝶形螺母
尺寸公差
伸缩型航梯的尺寸公差见表4。
梯架直线度
梯长L
梯架高度
踏步间距
伸缩型梯主要零件的材料
防锈铝
碳素结构钢
一级锚链
镀锌钢丝绳
无缝钢管
不锈钢
锰黄铜
5A05(LF5)
2A12(LY12)
5A02(LF2)
6×37-170-甲镀-右
工业用橡胶板
OCr18Ni9
ZCuZn40Mn2
4尺寸公差
允许公差
1/1000
梯架平直度
梯架扭曲度bZxz.net
梯架宽度
伸缩型梯焊接部位焊缝表面应无裂纹、夹渣、烧穿、未熔焊等缺陷。CB/T4190—2011
标准号
GB/T6892—2000
GB/T6893—2000
GB/T 6892—2000
GB/T700—2006
GB/T549—2008
GB8918—2006
GB/T699—1999
GB/T 5574—2008
GB/T1220—2007
GB/T 1176—1987
单位为毫米
允许公差
中拱1.5/1000
中垂1/1000
每10m长梯架平面内5mm
伸缩型梯制造后表面应无毛刺、裂纹,锐边应倒圆。不应有歪斜、扭曲和变形等缺陷4.4防锈
伸缩型航梯的上平台、下平台、立柱和固定装置除锈应不低于GB/T8923一1988中规定的Sa2.54.4.1
级或St3级,并涂防锈底漆两度,其他钢质零件按应CB/Z343进行热浸锌。活动部位应涂中性润滑脂。4.4.2伸缩型航梯的铝质件按CB/Z92进行氧化处理、4.4.3
钢质零件与铝质件接触面应加多硫橡胶垫。4.5
CB/T4190—2011
4.5.1伸缩型航梯的上平台施加4000N、下平台施加1470N的负荷,卸去负荷后上、下平台不应有损坏和永久变形。
4.5.2上部梯和下部梯每级踏步放置735N的负荷,此时挠度不超过75/L,卸去负荷后上部梯和下部梯不应有损坏和永久变形。
4.6性能
伸缩型炫梯的上部梯、下部梯、上平台、下平台、翻梯装置、紧固装置、吊索和吊链装配后应在台架上进行伸缩性能试验,整套伸缩型航梯设备运行时应同步和灵活,不应有卡滞现象。5试验方法
5.1材料
的方润
用检查其牌号和质量保证
5.2尺寸公差
用常规量具测
5.3外观
通过目视及
5.4防锈
按GB/T892
果应符合4.4的要
5.5强度
型梯的尺
检验伸缩
吉果应
差。结果应符合3.1
查伸缩型航梯的外观
343规定的方法对1
8、CB*/Z92和CB/7
5.5.1伸缩航梯的
的要求。
5.5.2伸缩航梯的
平合和下平台分别施加4000N、1470N的静
大部梯呈水平状态分另
微要求。
2、3.3和4.的谢寸
3的要求。
电缩型炫梯的零件表面进行防锈检查。结有
保持15
两端主
结果应符合4.5.1
每级踏步放置735N的负
结果应符
荷,历时15min,测量其挠度应符合4.52的要求。卸去负荷后,5.6性能
1.5.2的要求。
伸缩型航梯应进行整体的性能试验试验按下列步骤进行:伸出试验:伸缩型梯安装在试验台上,将航梯翻转出贰验台呈水平状态。调节好梯架吊链长a)
度,启动绞车,使航梯渐渐下降至与水平面呈25°(最大至55°)状态,然后继续启动绞车使下部梯从上部梯中(上)滑出,使其伸至最大使用长度停留5min;缩进试验:启动绞车使下部梯收缩,并使整个梯收缩到最小收藏状态。将梯提升呈水平状b)
态并翻转梯90°进入试验台成收藏状态。伸出试验与缩进试验反复做三次。结果应符合4.6的要求。6检验规则
6.1检验分类
伸缩型航梯的检验分为型式检验和出厂检验。6.2型式检验
检验时机
伸缩型梯制造有下列情况之一时,应进行型式检验:a)
首次生产或转厂生产;
结构、材料或工艺有重大改变足以影响产品性能:长期停产后恢复生产;
出厂检验结果与上次型式检验有较大差异:质量检验部门要求。
检验项目和顺序
伸缩型航梯型式检验项目和顺序见表5。表5
检验项目
尺寸公差
注:●必检项目。
检验样品数量
伸缩型航梯的检验项目和顺序
型式检验
出厂检验
要求的章、条号
伸缩型梯的型式检验样品数量为取制造厂实际制造最大的规格一台。判定规则
CB/T4190—2011
试验方法的章、务
所有检验项目符合要求,则判定伸缩型航梯的型式检验合格。若有不符合要求的项目,则判定伸缩型航梯型式检验不合格。
出厂检验
检验项目和顺序
伸缩型炫梯的出厂检验项目和顺序见表5。6.3.2
检验样品数量
伸缩型梯出厂检验应逐台进行。6.3.3判定规则
小提示:此标准内容仅展示完整标准里的部分截取内容,若需要完整标准请到上方自行免费下载完整标准文档。
标准图片预览:





- 其它标准
- 热门标准
- 其他行业标准
- FZ/T54085-2016 阻燃涤纶低弹丝
- FZ/T62035-2017 经编网眼织物复合凉席
- FZ/T54087-2016 粘合活化型涤纶工业长丝
- FZ/T54089-2016 有色锦纶6弹力丝
- FZ/T54091-2016 导电锦纶6牵伸丝
- FZ/T54088-2016 锦纶6全牵伸单丝
- FZ/T54080-2015 有光异形锦纶66弹力丝
- FZ/T92036-2017 弹簧加压摇架
- FZ/T54084-2016 阻燃涤纶预取向丝
- YS/T433-2016 银精矿
- FZ/T54082-2015 锦纶6膨体长丝(BCF)
- FZ/T61002-2019 化纤仿毛毛毯
- TSGR0006-2014 气瓶安全技术监察规程
- QB/T4698-2014 家用和类似用途软水机
- QB/T4207-2011 一字槽螺钉旋具头
- 行业新闻
请牢记:“bzxz.net”即是“标准下载”四个汉字汉语拼音首字母与国际顶级域名“.net”的组合。 ©2025 标准下载网 www.bzxz.net 本站邮件:bzxznet@163.com
网站备案号:湘ICP备2025141790号-2
网站备案号:湘ICP备2025141790号-2