- 您的位置:
- 标准下载网 >>
- 标准分类 >>
- 国家标准(GB) >>
- GB/T 17825.6-1999 CAD文件管理 更改规则
标准号:
GB/T 17825.6-1999
标准名称:
CAD文件管理 更改规则
标准类别:
国家标准(GB)
标准状态:
现行-
发布日期:
1999-08-01 -
实施日期:
2000-01-01 出版语种:
简体中文下载格式:
.rar.pdf下载大小:
113.06 KB
标准ICS号:
信息技术、办公机械设备>>信息技术应用>>35.240.10计算机辅助设计(CAD)中标分类号:
电子元器件与信息技术>>计算机>>L67计算机应用
点击下载
标准简介:
标准下载解压密码:www.bzxz.net
本标准规定了归档以前计算机辅助设计文件的更改原则、更改方法、更改程序、更改通知单的填写及更改后的文件名管理。本标准适用于经过签字或批准以后CAD文件的更改管理。 GB/T 17825.6-1999 CAD文件管理 更改规则 GB/T17825.6-1999
部分标准内容:
1C8 35.240.10
中华人民共和国国家标准
GB/T 17825. 1--17825.101999
1999-08-11发布
文件管理
Management of CAD documents
2000 01 - 01 实施
国家质星技术监督局发布
GB/117R75.6—·1999
小杯雅是根视我让算机册助没计(CAD)向前发展和光盘存培的需要,对CAD过我中所形成的有文文件进行有序肾端们拍制的证改术内等上,以我国AL文件形成过中为有关制虚和国际上的要求,以及果法上管部门的关规定作为参专而定的在GR1782:—19999AT>文件现这个总标题下包括以下10个际准:GB/T-7825.11999(AD文外管理
G1725.21A1)年
GB/-7X23.3—CAD 件
1/178.199文件者理
GB/T74.—7HAD支件管理
GR/T:7B23.61999CA1)文许管理
GB/-7X23.7—!5CAD文牛管别
G/!7S25.x1(GSCAI)文件普理
G3/R2.9—19CAD2件管
E行13823.10[9SCA文件厚
本标准出画家机碱工业片提山
在格式
综号质则
编制规划
基4程序
思改阅测
禁器规列
标雅化平查
完整性
存储与维扩
本标师中全国技术产品文料称准化质禾要员会心口:公标准定草单位:日家机城工业员机协科学研究院,中国机械工业标准化技术协会、航文工业总公可所中国法筑科学研究陈,也力部心力规划段计总院、中国标继化与作总分类销码所、北京料行电小特山公司,
标雄上云起车人:换东押,孟步培、界美,」宁,方天境、土聪牛、三平,土壶强毅,曾起,候赖。味,用张味,
中华人民共和国国家标准
文件管理
更改规则
Manageinent of CaD dacuments-Chauging inles
GB/T17825.61999
本列准规尽了且挡议前计算机辅助设计(以下货你A工)文性的更成原测,更费力法,更成理序,更改通知单的填写及更改汇的文件名管理:本标府适用于经过签字或此准以后CAD文纤的更改管理。2CAP文性的史改填则
2.1CAD文件要更改时应巾负专核叫目的段计人员填写更改通知单,开经有关部门核技术责们制见定笠我和有关领导审批后,才能财对CAD文件进行更改。2.2心AI)文件的电改逆知中应投有关规定进行设送。2.3心A文件史改时,与其相关的设计文件成同时发出会改通知单进相应的史改。司经定改后的回少号加人同媒体介质的A文件应识持完整,正确协谢,统3CAD文件的更改方法
3.1带史收标记的史改方法
3. 1.1、在C4文件1胍去被更改的前分,境人新为容,近要改部位画圆、园内填写相成的更改球光,门该两用细变裁引至更政部位,3.1.2加新总(一度用第1是),命名为是改息存改已被史改的分。关闭此层则该房内容课不显示,不前给制出水,
3.1.3营至改标记册改示例见图1.改
更改层恂人
必要,也川以宋用划改的方法,图2。国累质量技术监咨局999-08-1批准E
2000 -01-01 实施
3.2不带更改原记的思收守伪
GB/T17825.6—1999
3. 2. 1在CAD文并上,期去效更改的影分,在相应的位胃上始人新内容3.7.?在要收层相应的部位输入引线(即驾实线)的顾及鼓去的部分,回内填写更收标记:关闪此层,该尽的内客鼠不某示,也不被然刺山来。3.2.3不带更改标证的用改示例见图3。更改定快人项
3.3文字说明的更政
根烟更改的克多程度和具体情说,在对CAD文作进行更求时在更改的关都位也可来用文字说明的办法进行更改,
4TAD交件的更改插序
4.1A文件的要或,应性韧遥过审独的更谈通知单进行。4.2:心AD操作人员按更改通单的更改要求互改CAD文件,经史改通划单的编制人员复核后,在CA》文件更改记录栏分别填人“更改标信”、“数景”,“签名\和\期”各烂4.3A山操作人员在史改AL件后成在存关的AD文件中的其法相应史改栏中放时助停更妆信您,
4.点CA遵作人员历要收后的CAI文件,打印或克制出生产文件,试有关部门使用。5更改通卸单的填写
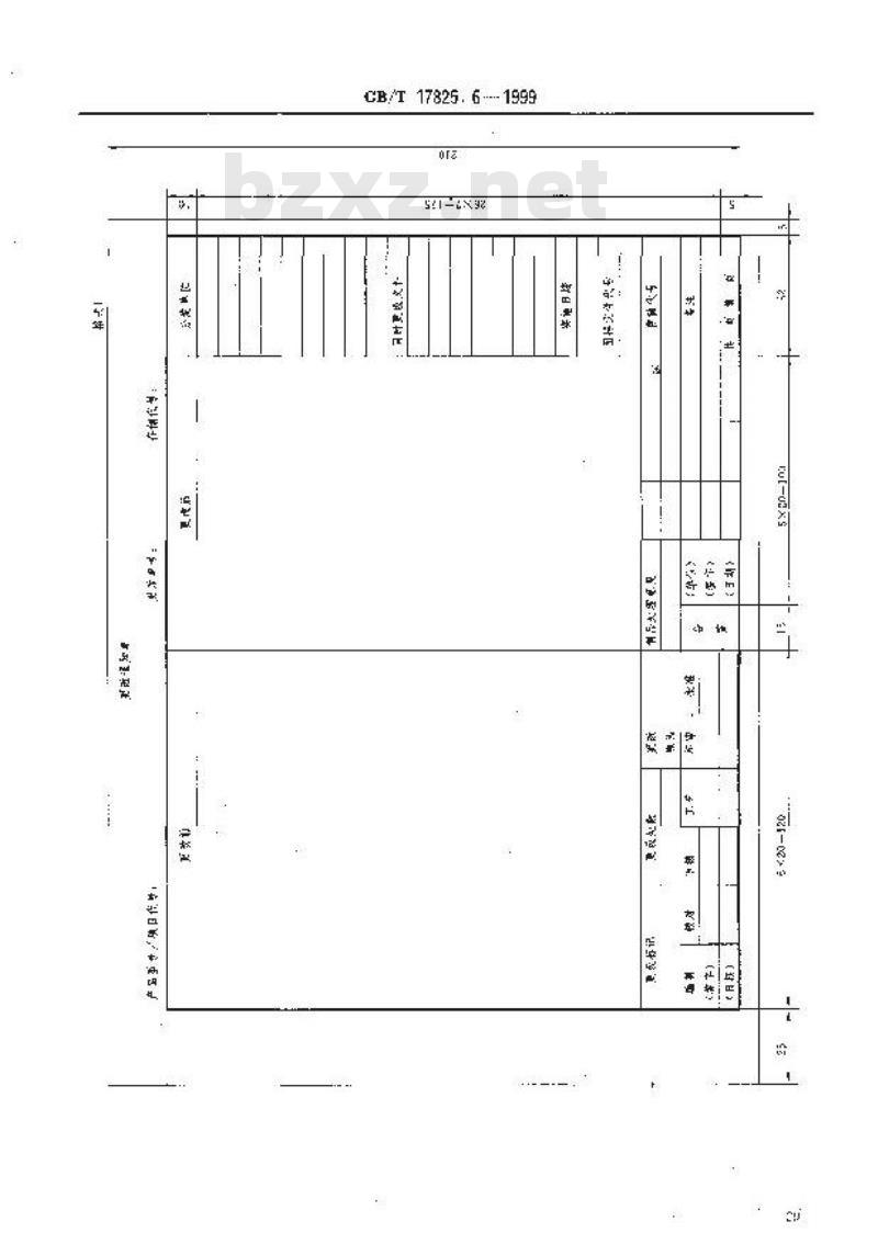
5..1生改通知单的摊荐格式见格式1,格式2。5-2被更收设计文件的行代号、安致迪知单号及更改通灯单的存储代考应填写在心A更妆通知单的规实置上,
5.3更数通灯单的其他填写事须应按式存类标理或现定快行。6AD 文件更改后的这件名管理
经过要政后的CAI文件,其文件名格可报据声婴在后面增如\店改1\\史改2”\要改X文”其中更单1\为第一决出收,“出2\为第二次更改“更改文“为第××次更改,2示区别。CB/T17825.6..1999
tut-o3xs
GB/T 17825.6—1999www.bzxz.net
-F1×5
FIL-HXE
小提示:此标准内容仅展示完整标准里的部分截取内容,若需要完整标准请到上方自行免费下载完整标准文档。
中华人民共和国国家标准
GB/T 17825. 1--17825.101999
1999-08-11发布
文件管理
Management of CAD documents
2000 01 - 01 实施
国家质星技术监督局发布
GB/117R75.6—·1999
小杯雅是根视我让算机册助没计(CAD)向前发展和光盘存培的需要,对CAD过我中所形成的有文文件进行有序肾端们拍制的证改术内等上,以我国AL文件形成过中为有关制虚和国际上的要求,以及果法上管部门的关规定作为参专而定的在GR1782:—19999AT>文件现这个总标题下包括以下10个际准:GB/T-7825.11999(AD文外管理
G1725.21A1)年
GB/-7X23.3—CAD 件
1/178.199文件者理
GB/T74.—7HAD支件管理
GR/T:7B23.61999CA1)文许管理
GB/-7X23.7—!5CAD文牛管别
G/!7S25.x1(GSCAI)文件普理
G3/R2.9—19CAD2件管
E行13823.10[9SCA文件厚
本标准出画家机碱工业片提山
在格式
综号质则
编制规划
基4程序
思改阅测
禁器规列
标雅化平查
完整性
存储与维扩
本标师中全国技术产品文料称准化质禾要员会心口:公标准定草单位:日家机城工业员机协科学研究院,中国机械工业标准化技术协会、航文工业总公可所中国法筑科学研究陈,也力部心力规划段计总院、中国标继化与作总分类销码所、北京料行电小特山公司,
标雄上云起车人:换东押,孟步培、界美,」宁,方天境、土聪牛、三平,土壶强毅,曾起,候赖。味,用张味,
中华人民共和国国家标准
文件管理
更改规则
Manageinent of CaD dacuments-Chauging inles
GB/T17825.61999
本列准规尽了且挡议前计算机辅助设计(以下货你A工)文性的更成原测,更费力法,更成理序,更改通知单的填写及更改汇的文件名管理:本标府适用于经过签字或此准以后CAD文纤的更改管理。2CAP文性的史改填则
2.1CAD文件要更改时应巾负专核叫目的段计人员填写更改通知单,开经有关部门核技术责们制见定笠我和有关领导审批后,才能财对CAD文件进行更改。2.2心AI)文件的电改逆知中应投有关规定进行设送。2.3心A文件史改时,与其相关的设计文件成同时发出会改通知单进相应的史改。司经定改后的回少号加人同媒体介质的A文件应识持完整,正确协谢,统3CAD文件的更改方法
3.1带史收标记的史改方法
3. 1.1、在C4文件1胍去被更改的前分,境人新为容,近要改部位画圆、园内填写相成的更改球光,门该两用细变裁引至更政部位,3.1.2加新总(一度用第1是),命名为是改息存改已被史改的分。关闭此层则该房内容课不显示,不前给制出水,
3.1.3营至改标记册改示例见图1.改
更改层恂人
必要,也川以宋用划改的方法,图2。国累质量技术监咨局999-08-1批准E
2000 -01-01 实施
3.2不带更改原记的思收守伪
GB/T17825.6—1999
3. 2. 1在CAD文并上,期去效更改的影分,在相应的位胃上始人新内容3.7.?在要收层相应的部位输入引线(即驾实线)的顾及鼓去的部分,回内填写更收标记:关闪此层,该尽的内客鼠不某示,也不被然刺山来。3.2.3不带更改标证的用改示例见图3。更改定快人项
3.3文字说明的更政
根烟更改的克多程度和具体情说,在对CAD文作进行更求时在更改的关都位也可来用文字说明的办法进行更改,
4TAD交件的更改插序
4.1A文件的要或,应性韧遥过审独的更谈通知单进行。4.2:心AD操作人员按更改通单的更改要求互改CAD文件,经史改通划单的编制人员复核后,在CA》文件更改记录栏分别填人“更改标信”、“数景”,“签名\和\期”各烂4.3A山操作人员在史改AL件后成在存关的AD文件中的其法相应史改栏中放时助停更妆信您,
4.点CA遵作人员历要收后的CAI文件,打印或克制出生产文件,试有关部门使用。5更改通卸单的填写
5..1生改通知单的摊荐格式见格式1,格式2。5-2被更收设计文件的行代号、安致迪知单号及更改通灯单的存储代考应填写在心A更妆通知单的规实置上,
5.3更数通灯单的其他填写事须应按式存类标理或现定快行。6AD 文件更改后的这件名管理
经过要政后的CAI文件,其文件名格可报据声婴在后面增如\店改1\\史改2”\要改X文”其中更单1\为第一决出收,“出2\为第二次更改“更改文“为第××次更改,2示区别。CB/T17825.6..1999
tut-o3xs
GB/T 17825.6—1999www.bzxz.net
-F1×5
FIL-HXE
小提示:此标准内容仅展示完整标准里的部分截取内容,若需要完整标准请到上方自行免费下载完整标准文档。
标准图片预览:





- 其它标准
- 热门标准
- 国家标准(GB)
- GB/T30917—2014 /ISo 29941:2010 天然胶乳橡胶避孕套中可迁移亚硝胺的测定
- GB/T12777-1999 金属波纹管膨胀节通用技术条件
- GB15193.5-2003 骨髓细胞微核试验
- GB/T29633.4-2020 南极地名 第4部分:罗马字母拼写
- GB/T39964-2021 造纸行业能源管理体系实施指南
- GB/T43929-2024 空间用纤维光学器件测试指南
- GB/T42970-2023 半导体集成电路 视频编解码电路测试方法
- GB/T43225-2023 空间物体登记要求
- GB15985-1995 丝虫病诊断标准及处理原则
- GB19159-2003 车用液化石油气
- GB/T7407-1997 中国及世界主要海运贸易港口代码
- GB1913.2-1990 漂白浸渍绝缘纸
- GB14287.4-2014 电气火灾监控系统 第4部分:故障电弧探测器
- GB5237.3-2008 铝合金建筑型材 第3部分:电泳涂漆型材
- GB/T9771.6-2020 通信用单模光纤 第6部分:宽波长段 光传输用非零色散单模光纤特性
- 行业新闻
请牢记:“bzxz.net”即是“标准下载”四个汉字汉语拼音首字母与国际顶级域名“.net”的组合。 ©2025 标准下载网 www.bzxz.net 本站邮件:bzxznet@163.com
网站备案号:湘ICP备2025141790号-2
网站备案号:湘ICP备2025141790号-2