- 您的位置:
- 标准下载网 >>
- 标准分类 >>
- 船舶行业标准(CB) >>
- CB/T 3518.4-92 复合岩棉板耐火舱室构架件
标准号:
CB/T 3518.4-92
标准名称:
复合岩棉板耐火舱室构架件
标准类别:
船舶行业标准(CB)
标准状态:
现行出版语种:
简体中文下载格式:
.zip .pdf下载大小:
312.67 KB
点击下载
标准简介:
CB/T 3518.4-92.
1主题内容与适用范围
CB/T 3518.4规定了复合岩棉板耐火舱室构架件的典型结构型式.技术要求等。
CB/T 3518.4适用于船舶.海洋工程建筑物具有耐火分隔要求的舱室(包括工作舱宣.居住抢宝.卫生舱室和内走道).也适用于具有耐火分隔要求的生活模块。
2引用标准
GB2828逐批检查计数抽样程序及抽样资
3构架件分类
3.1构架件按壁 板组装结构相应分为A、B.C三种类型。
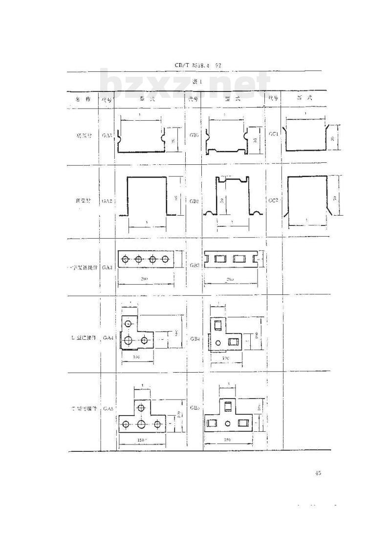
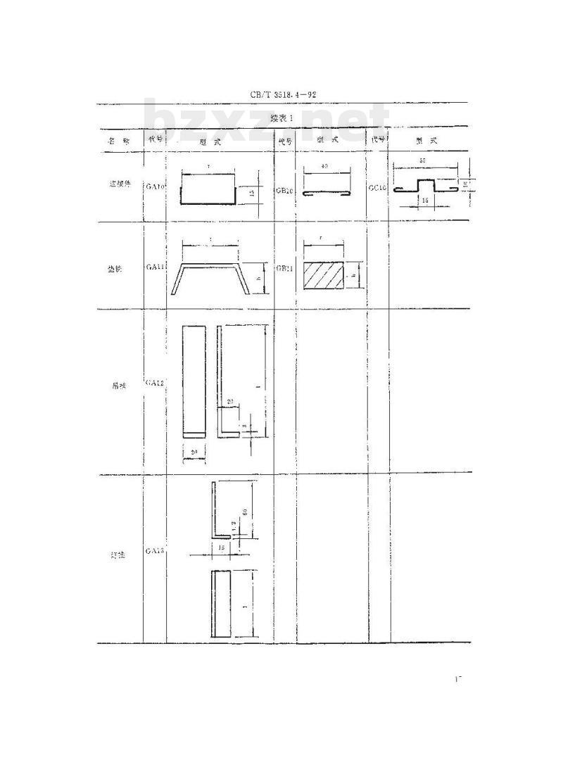
3.2构架件由型材 .连接件和包角件等组成。结构型式和基本尺寸见表1。
3.3 型材的规格系列见表2。
3.4标记示 例
宽度t=50mm的GA1底型材
底型村GA1 50CB/T 3518. 4-92
宽度t= 50mm的GAi连接件
L型连接件GA4 50CB/T 3518. 4-92
4技术要求
41底型材和顶型材宽度尺寸公差为一2mm,
4.2制造质量与外观要求
4.2.1构架件 表面无尖角毛刺。
4.2.2构架件的材料为复盟钢板时.复塑钢板的丧面应保持清洁、平整,一般不允许有划伤。
4.2.3构架件材料为碳素钢板时.制造后应防铸处理。
4.3 构架件的材料名称、规格见表4。
部分标准内容:
CB/T3518.1~3518.6—92
复合岩棉板耐火舱室
1993 01 --08 发布
中国船舶工业总公司
1993--07-01实施
中华人民共和国船舶行业标淄
构架件
复合岩棉板耐火舱室
主题内容与适用范固
CB/T3518.4
分装号:
本标准规出了复合零部授研火能博架计的典型站均型式、技要求等,本标准适用平招的.海洋工型建统的具谢火分满要求的舱蜜(包5位验可、升存验常,三生验室和内走道),消下让有火分隔资求的生所使换。2引用标准
GB282S
室批险查计数型择间及拍伴
3构架件分类
3.1构奖件按整板组装缩专相网分为A.B.C三降类型3.?构架牛出宽材,连接件折色自件第计成,站构差式出装本尺寸见衰1型材的规陪系列完表2。
原主作5管
包用件位
acco.9.co.a5c.
926 2830. 3530. 0354
中国船舶工业总公司--s批免费标准下载网bzxz
FTYKAONIKAcCa-
换造验至所
1993-实施
慎型盐
学型遵接伴
L雪产接件
接+GA
CB/T 3518.
京造接件GAS
产包角件
内的角牛
CH/T 3518. 4 -92
编表1
HYKAONIKAca
CB/T 3518. 4-92
续表1
构架件重系无表3
3. 4标范关测
实度!一mm的GA|底
联村 tA1 50 CB/2 35 8. 4-92
魔避mm的A海作
CB/T 3518. 4- 92
[. 姿件 GA1 5U LB/T 331S. :92技术要求
1.1底塑书和预型究度小公益为mu:1.2制造质与外现要求
1.2.1染件表面元火单粗,
4.2.2构架件的材料为复塑偏胶时,复费组我的使丽应保导请清,欧、股不充诈方划伤1.3构架作材料为谈教极时·制世应防处理,.3均架件的杠料名称规格见表4。表1
宁连送证
1. 些延酸
说准接车
十字坚造及
外立牛
内包前
T张包汁
至族萨
格引钢
++ -:- 11. 2
标善中
:251588
+1e -- 3. 20T.r.
Q235AF3mm
HTYKADNIKAca-
Ghi3o8
5检验规则
CB/T3518.4—92
5.1出厂检验项H按第匹登要求。验齐式:按GB2828中一次油样的现定,5.2均架件出!成附有合格证对。6标志.包装.贮存
经捡验合格的构架件必频注明品标恶:a、制造广名或离标:
b.产品名称:
c,产品标记:
d.产品规陷:
道期。
6.2包装
型材等比蚊长前构望件应成调包装。其它构架件放车包装箱望包装,装的构架件应有装筋单,5.3
构架件不补改有露大场所,以免润水救盗锈注严重附加说明:
标准由全因船舶辆装标雅化委员会提三:本标准山江南造船广归门。
本标滤由江西期书机均厂,求新造船厂负资起草。本标准主要起堂人
成患关
小提示:此标准内容仅展示完整标准里的部分截取内容,若需要完整标准请到上方自行免费下载完整标准文档。
标准图片预览:





- 其它标准
- 热门标准
- CB船舶标准
- CB/T4125-2011 船舶压载舱涂层破损面积的评估与计算方法
- CB/T4151-2011 船舶坞内移位落墩工艺要求
- CB1381-2005 军用加固液晶显示器通用规范
- CB/T3732-1995 耙吸挖泥船耙头修理技术要求
- CB/T3945-2002 法兰铸钢带波纹管截止阀
- CB1203-1989 鱼雷用防护防水蜡通用技术条件
- CB/T3607-1993 螺旋桨及尾轴安装质量要求
- CB/T4160-2011 锚修理技术要求
- CB/T3563-1993 船用柴油机涡轮增压器修理技术要求
- CB751-68 钢质门
- CB597-1990 外螺纹钢制直角截止止回阀
- CB/T3031-2000 通风式带缆桩
- CB/Z254-2011 合同设计、详细设计和生产设计相关衔接的基本要求
- CB/T4122-2011 船舶碳素钢管TIG焊接技术要求
- CB/T4164-2011 船用组合式放泄阀
- 行业新闻
网站备案号:湘ICP备2025141790号-2